CAD频道
CAD图库
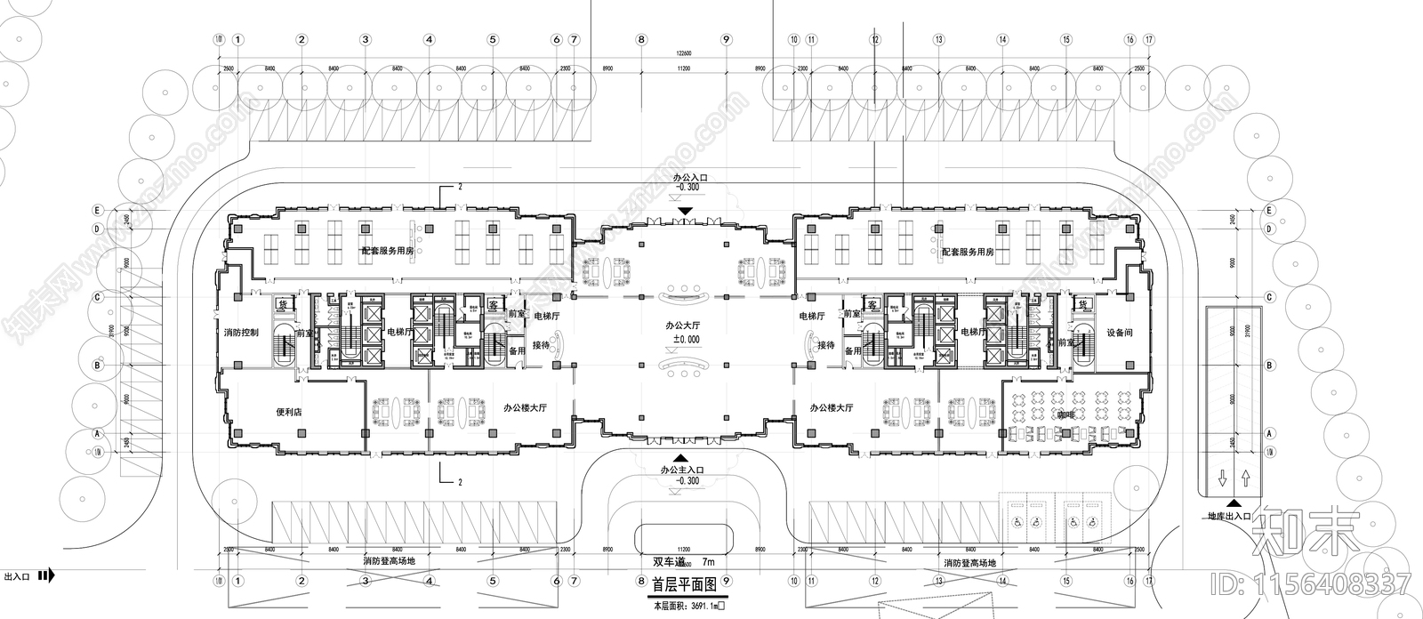
办公楼平面图 施工图
1/
4
Previous
Next
办公楼平面图CAD下载
ID: 1156408337
复制
上传作者
萍萍
上传时间
2024-03-25
文件大小
0.7M
设计风格:
现代简约
CAD版本:
CAD2014
包含文件:
CAD
授权
普通
立即下载
收藏
分享
举报
相关推荐
综合
平面图
工装平面图
景观平面图
规划平面图
其他平面图
小区平面图