CAD频道
CAD图库
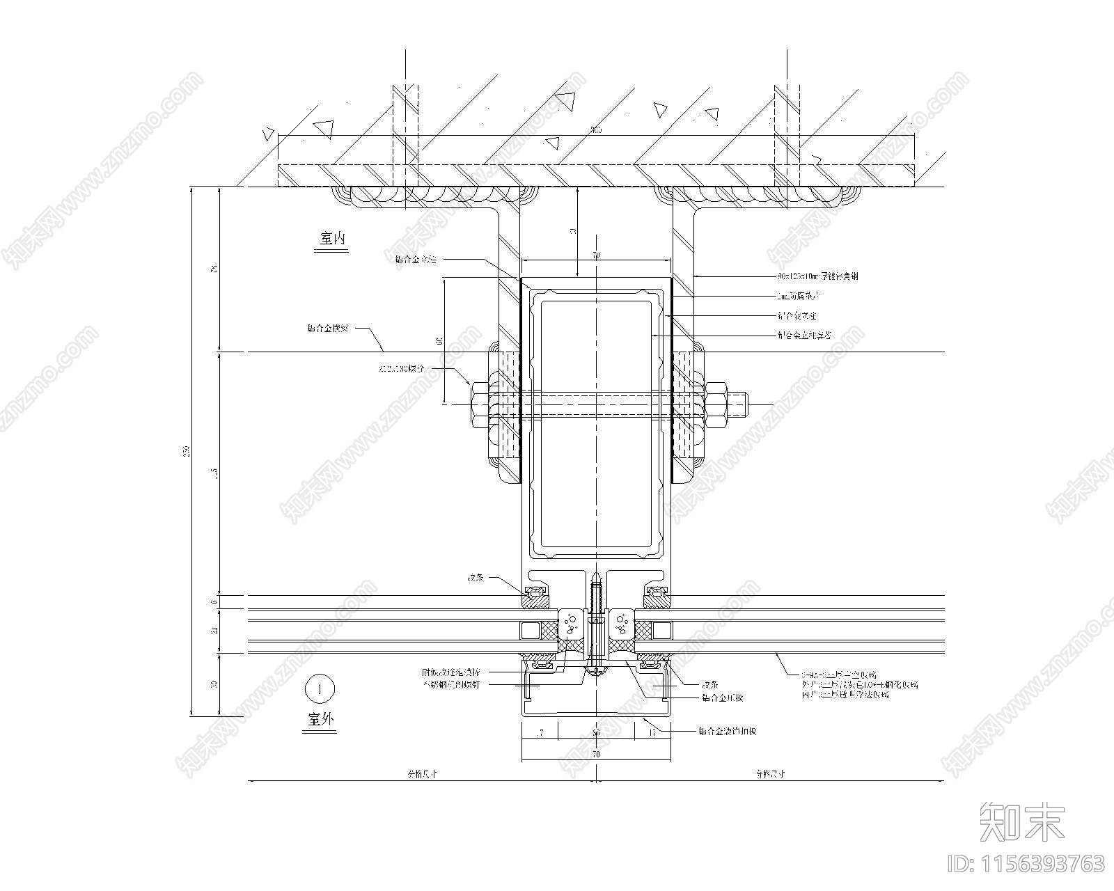
竖明横隐幕墙连接件横剖节点图 施工图 节点 结构节点图
1/
2
Previous
Next
竖明横隐幕墙连接件横剖节点图CAD下载
ID: 1156393763
复制
上传作者
笑傲容颜
上传时间
2024-03-25
文件大小
0.05M
设计风格:
--
CAD版本:
CAD2010
包含文件:
CAD
授权
独家
立即下载
收藏
分享
举报
相关推荐
综合
结构节点图
幕墙结构节点
桁架
钢结构节点
混凝土节点
转换层
其他结构设计