CAD频道
CAD图库
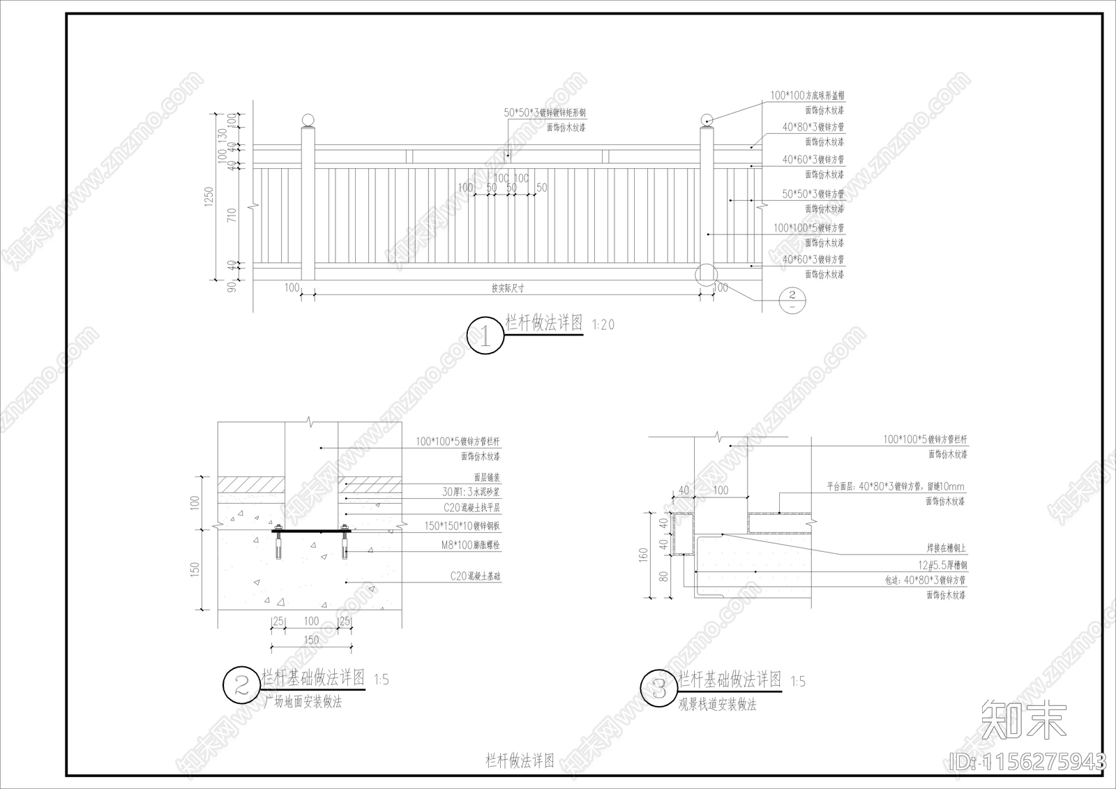
钢结构栏杆 简易 方管 景观 施工图
1/
3
Previous
Next
钢结构栏杆CAD下载
ID: 1156275943
复制
上传作者
бю
上传时间
2024-03-23
文件大小
0.68M
设计风格:
--
CAD版本:
天正CAD6.0
包含文件:
CAD
授权
独家
立即下载
收藏
分享
举报
相关推荐
综合
节点详图
楼梯节点
吊顶节点
墙面节点
地面节点
门节点
其他节点详图
建筑工程节点
景观小品
水景