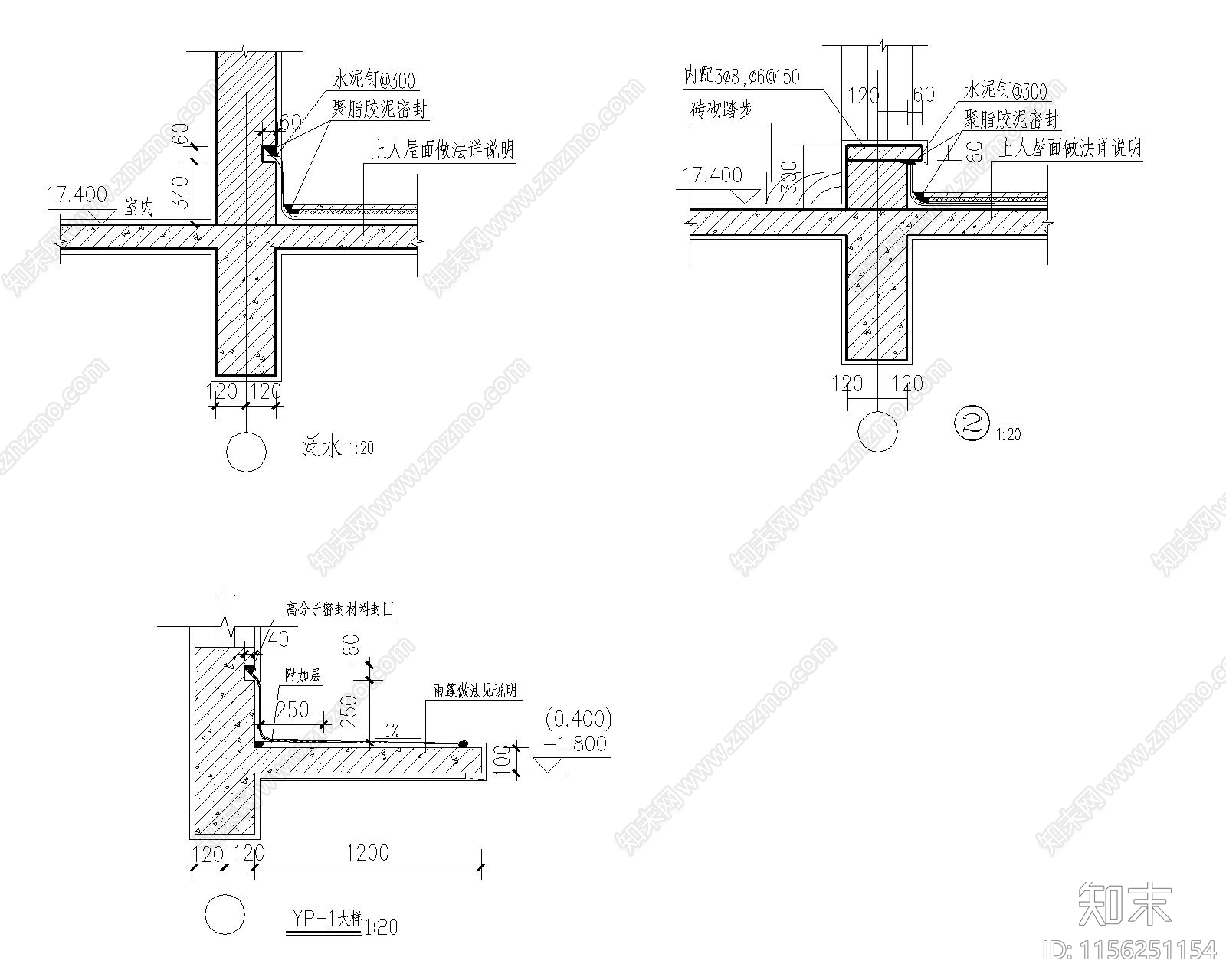
泛水通用大样图施工图下载【ID:1156251154】

泛水通用大样图CAD下载

ID: 1156251154
复制
上传作者
笑傲容颜笑傲容颜

上传时间2024-03-23

文件大小0.03M

设计风格:--

CAD版本:CAD2010

包含文件:CAD

授权独家

立即下载
收藏
分享
举报
相关推荐
综合
室内工艺节点
其他室内工艺节点