CAD频道
CAD图库
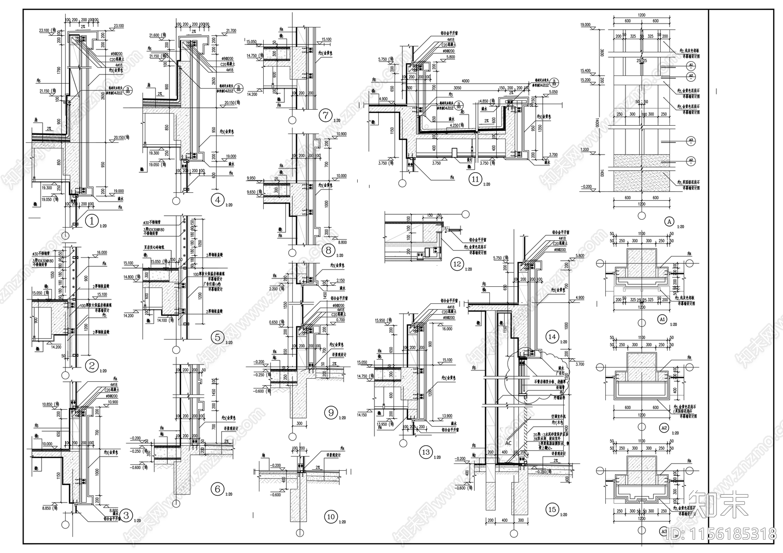
墙身大样 施工图 墙面通用节点
1/
3
Previous
Next
墙身大样CAD下载
ID: 1156185318
复制
上传作者
常威打来福
上传时间
2024-03-22
文件大小
5.27M
设计风格:
--
CAD版本:
天正CAD6.0
包含文件:
CAD
授权
独家
立即下载
收藏
分享
举报
相关推荐
综合
墙面节点
背景墙节点
轻钢龙骨隔墙
壁龛节点
隔音墙节点