1/4


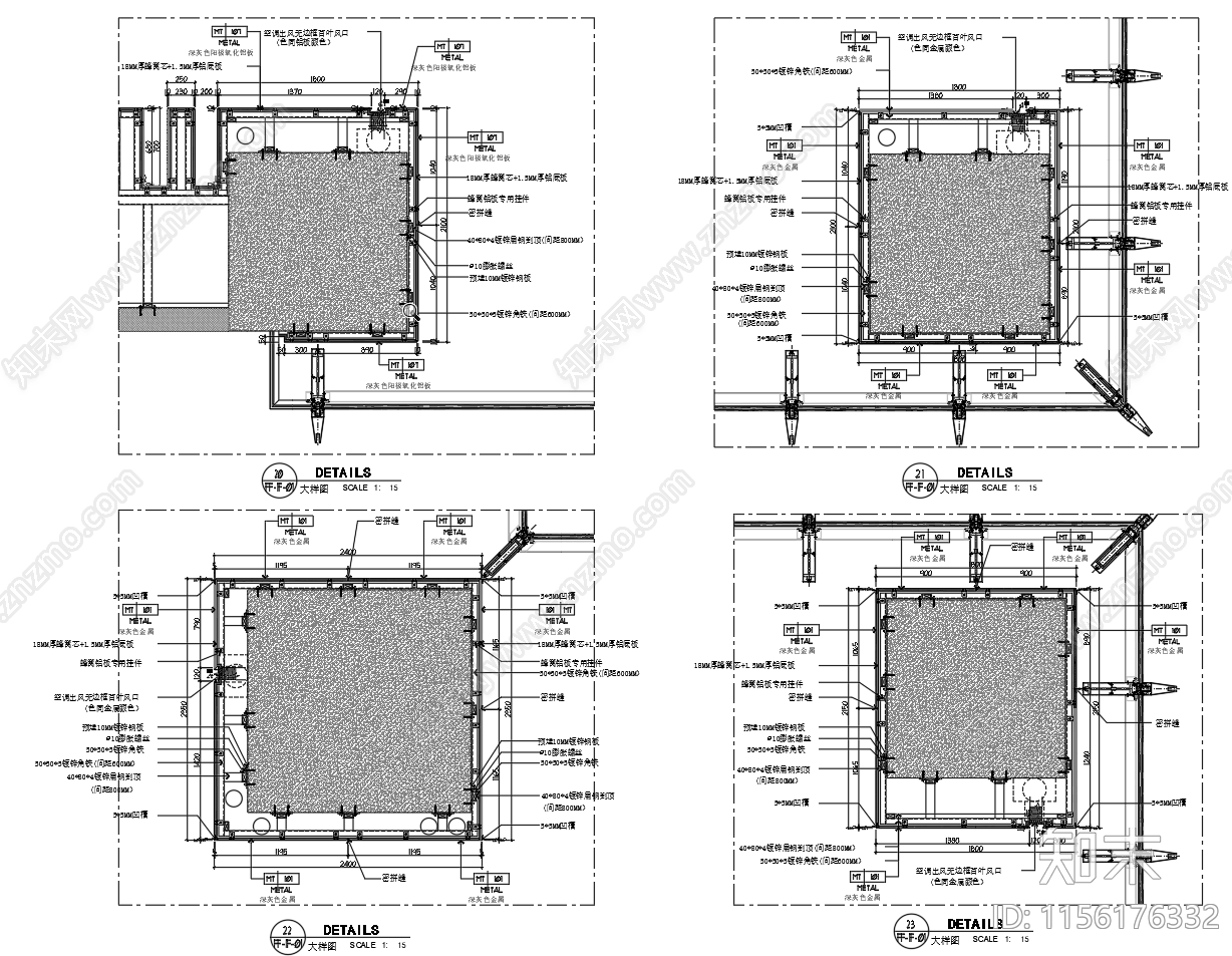
蜂窝铝板与玻璃幕墙收口CAD下载
ID: 1156176332
复制
上传作者
用户aeec82
用户aeec82上传时间2024-03-22
文件大小3.71M
设计风格:--
CAD版本:CAD2007
包含文件:CAD
授权独家
立即下载
收藏
分享
举报
相关推荐
综合
结构节点图
幕墙结构节点
桁架
钢结构节点
混凝土节点
转换层
其他结构设计


用户aeec82上传时间2024-03-22
文件大小3.71M
设计风格:--
CAD版本:CAD2007
包含文件:CAD
授权独家