1/3
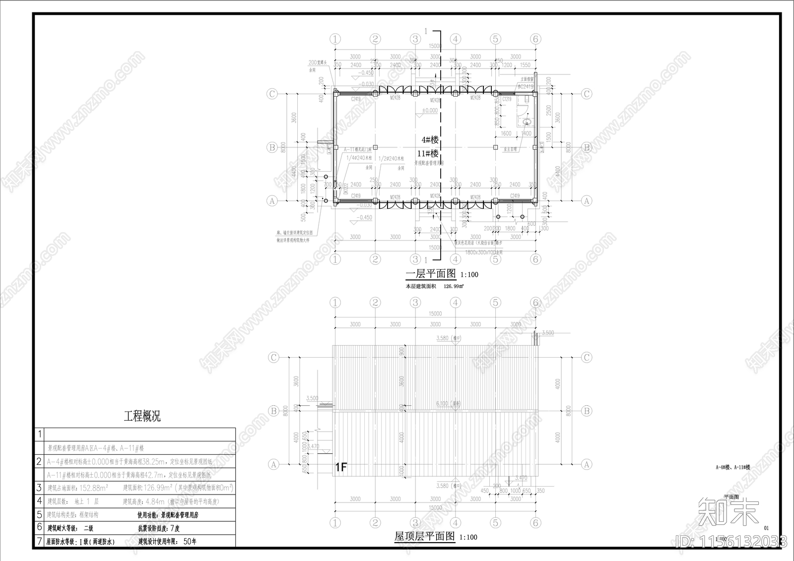
中式硬山古建筑施工图下载【ID:1156132033】

中式硬山古建筑CAD下载

ID: 1156132033
复制
上传作者
火影猫者的景观天地火影猫者的景观天地

上传时间2024-03-21

文件大小0.26M

设计风格:中式

CAD版本:CAD2004

包含文件:CAD

授权独家

立即下载
收藏
分享
举报
相关推荐
综合
古建
其他古建筑
祠堂
寺庙
徽派建筑
仿古建筑