CAD频道
CAD图库
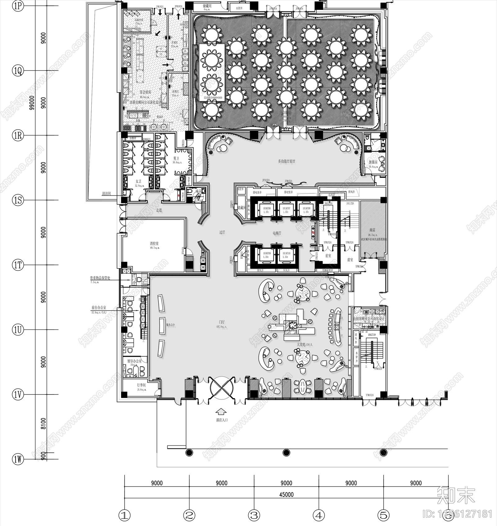
2000㎡酒店大堂宴会厅平面布置图 施工图
1/
2
Previous
Next
2000㎡酒店大堂宴会厅平面布置图CAD下载
ID: 1156127181
复制
上传作者
HZZZ
上传时间
2024-03-21
文件大小
4.92M
设计风格:
CAD版本:
CAD2004
包含文件:
CAD
授权
独家
立即下载
收藏
分享
举报
相关推荐
综合
平面图
工装平面图
景观平面图
规划平面图
其他平面图
小区平面图