CAD频道
CAD图库
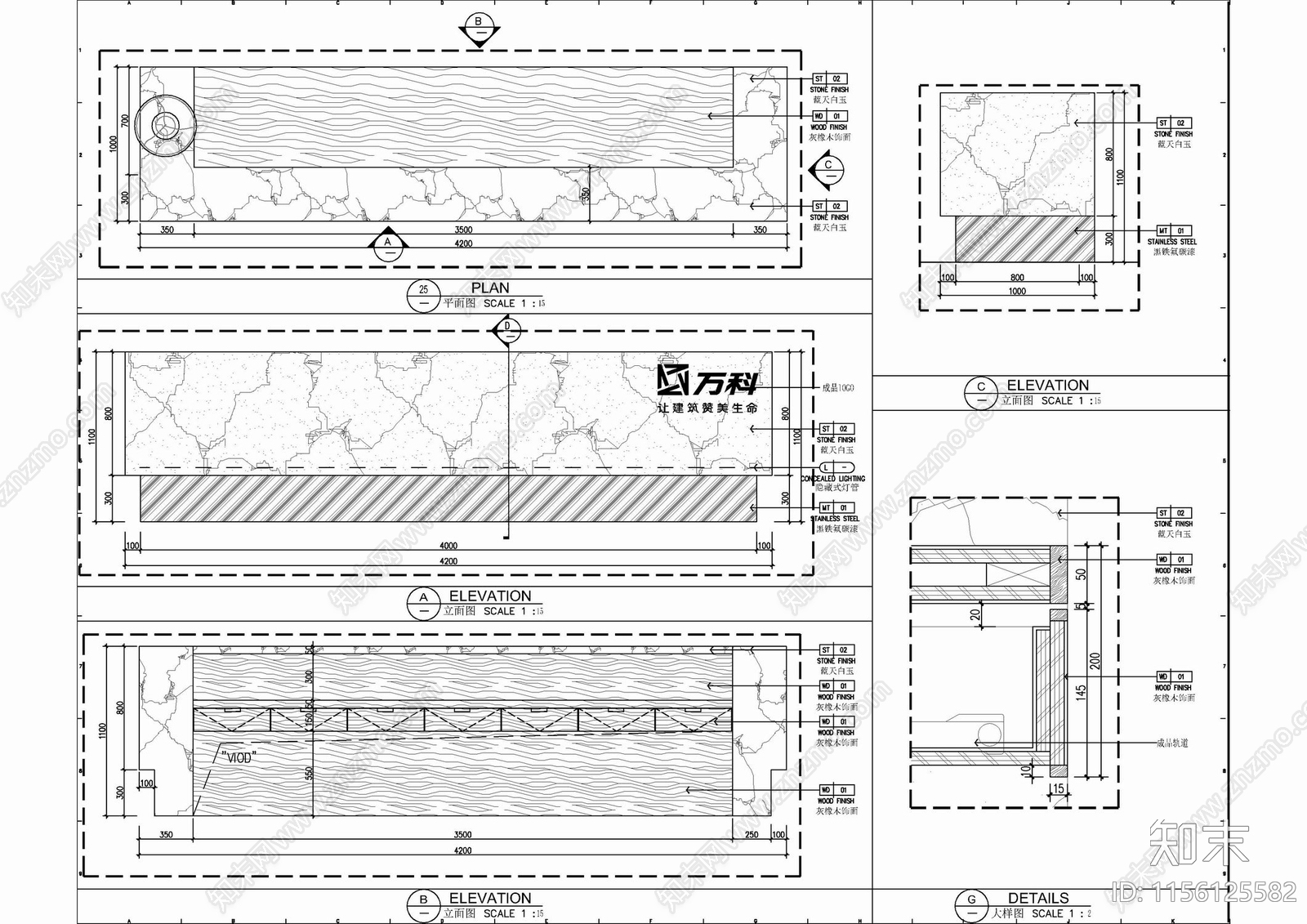
万科办公室接待台前台施工详图 施工图 家具节点详图
1/
2
Previous
Next
万科办公室接待台前台施工详图CAD下载
ID: 1156125582
复制
上传作者
@白鹿原
上传时间
2024-03-21
文件大小
2.01M
设计风格:
--
CAD版本:
CAD2004
包含文件:
CAD
授权
普通
立即下载
收藏
分享
举报
相关推荐
综合
家具节点详图
前台节点
吧台节点
壁炉节点
柜体节点
卡座节点
综合家具节点