1/2


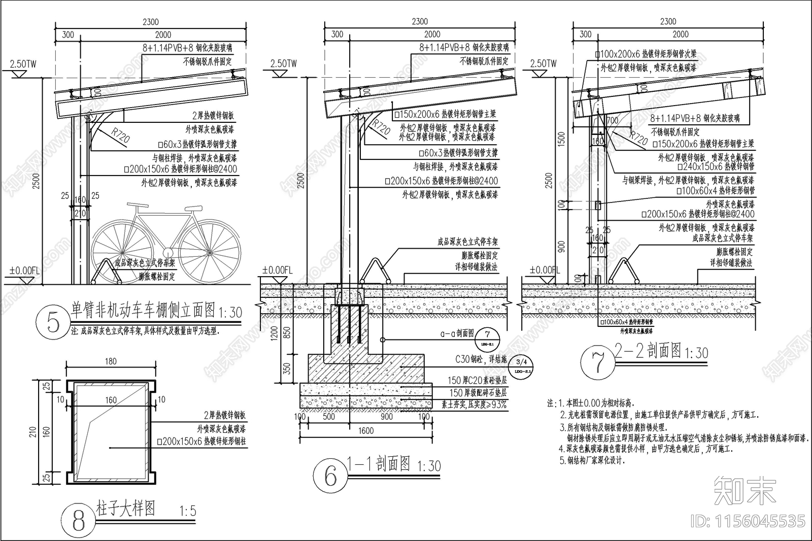
非机动车单臂雨棚CAD下载
ID: 1156045535
复制
上传作者
labububbbbb
labububbbbb上传时间2024-03-20
文件大小0.2M
设计风格:--
CAD版本:CAD2014
包含文件:CAD
授权普通
立即下载
收藏
分享
举报
相关推荐
综合
景观小品
雨棚
亭子
廊架
景墙
综合景观小品
围墙
挡土墙
入口
景观坐凳


labububbbbb上传时间2024-03-20
文件大小0.2M
设计风格:--
CAD版本:CAD2014
包含文件:CAD
授权普通