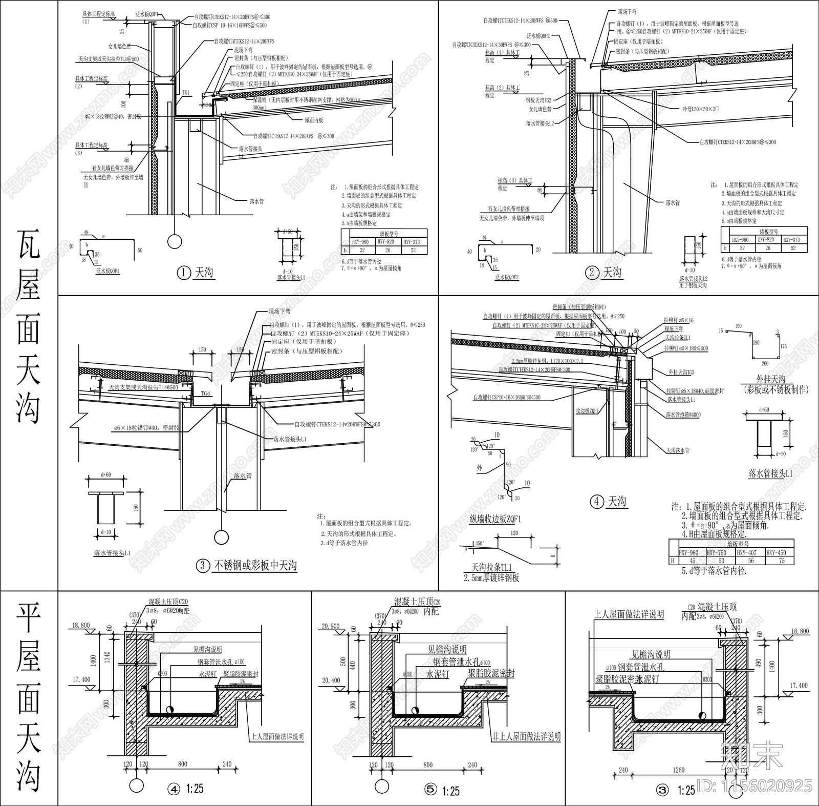
天沟做法详图施工图下载【ID:1156020925】

天沟做法详图CAD下载

ID: 1156020925
复制
上传作者
*晴天~*晴天~

上传时间2024-03-20

文件大小0.12M

设计风格:

CAD版本:CAD2004

包含文件:CAD

授权普通

立即下载
收藏
分享
举报
相关推荐
综合
建筑工程节点
建筑综合节点
屋顶
柱子节点
吊装节点
斗拱节点
楼板节点
女儿墙节点
塔吊节点
天窗节点