CAD频道
CAD图库
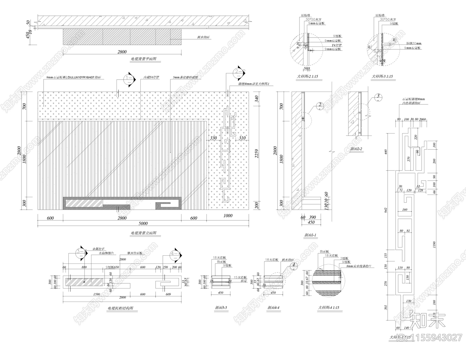
新中式客厅电视背景墙立面施工详图 剖面节点大样图 施工图 墙面节点
新中式客厅电视背景墙立面施工详图CAD下载
ID: 1155943027
复制
上传作者
大有可为
上传时间
2024-03-19
文件大小
0.21M
设计风格:
--
CAD版本:
CAD2004
包含文件:
CAD
授权
独家
立即下载
收藏
分享
举报
相关推荐
综合
墙面节点
背景墙节点
轻钢龙骨隔墙
壁龛节点
隔音墙节点