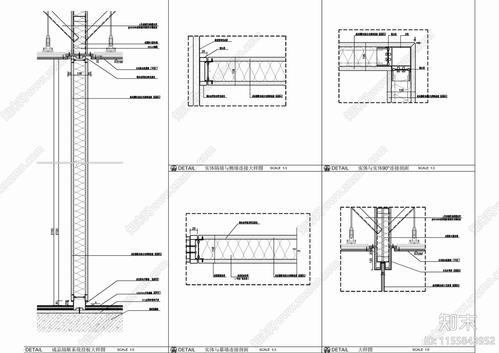
烤漆金属挂板成品隔断系统隔墙剖面大样详图施工图下载【ID:1155843952】

烤漆金属挂板成品隔断系统隔墙剖面大样详图CAD下载

ID: 1155843952
复制
上传作者
@白鹿原@白鹿原

上传时间2024-03-18

文件大小1.44M

设计风格:--

CAD版本:CAD2004

包含文件:CAD

授权普通

立即下载
收藏
分享
举报
相关推荐
综合
家具节点详图
综合家具节点
吧台节点
壁炉节点
柜体节点
卡座节点
前台节点