1/3


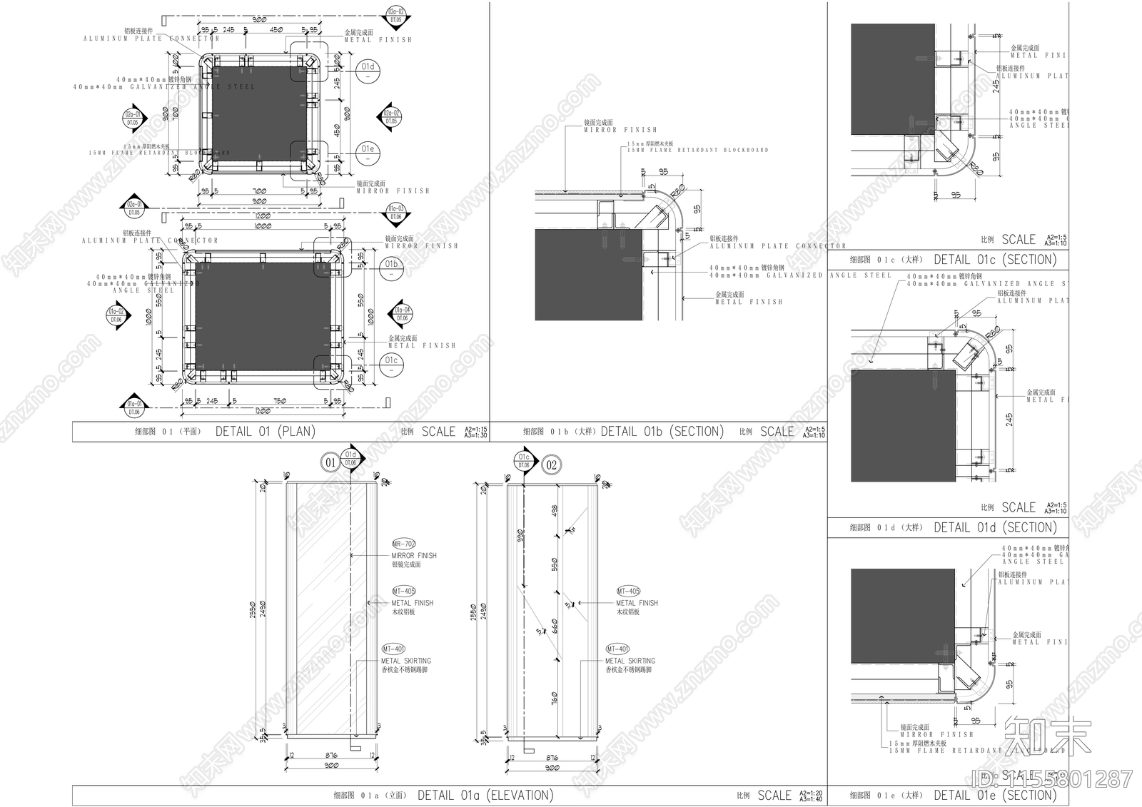
健身房立柱大样图CAD下载
ID: 1155801287
复制
上传作者
在逃香菜
在逃香菜上传时间2024-03-18
文件大小6.79M
设计风格:--
CAD版本:CAD2004
包含文件:CAD
授权独家
立即下载
收藏
分享
举报
相关推荐
综合
节点详图
其他节点详图
吊顶节点
墙面节点
地面节点
门节点
建筑工程节点
景观小品
楼梯节点
水景


在逃香菜上传时间2024-03-18
文件大小6.79M
设计风格:--
CAD版本:CAD2004
包含文件:CAD
授权独家