CAD频道
CAD图库
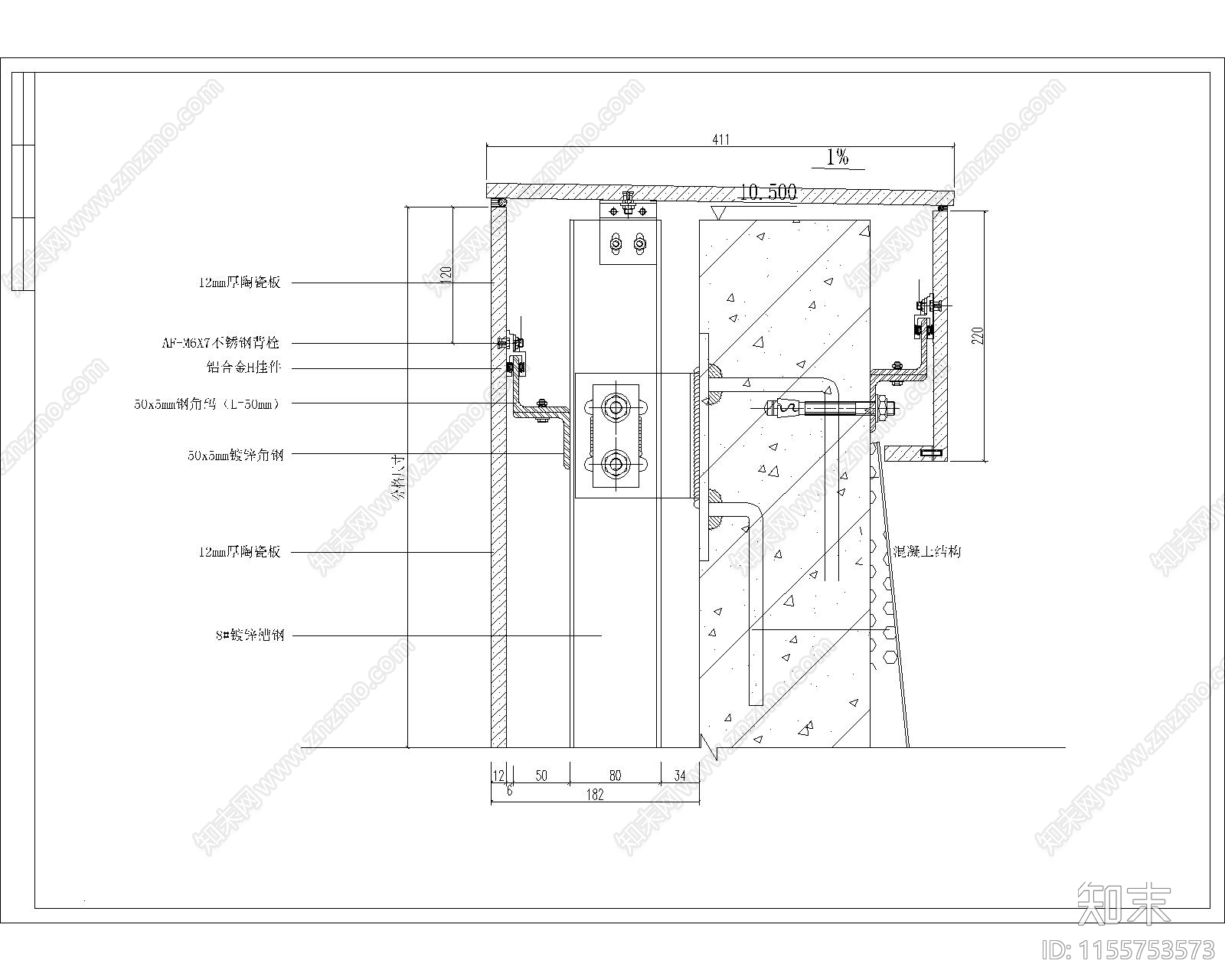
某瓷板背栓幕墙节点构造详图 施工图 节点 结构节点图
1/
10
Previous
Next
某瓷板背栓幕墙节点构造详图CAD下载
ID: 1155753573
复制
上传作者
撞大墙啦
上传时间
2024-03-17
文件大小
0.27M
设计风格:
--
CAD版本:
CAD2014
包含文件:
CAD
授权
普通
立即下载
收藏
分享
举报
相关推荐
综合
结构节点图
幕墙结构节点
桁架
钢结构节点
混凝土节点
转换层
其他结构设计