CAD频道
CAD图库
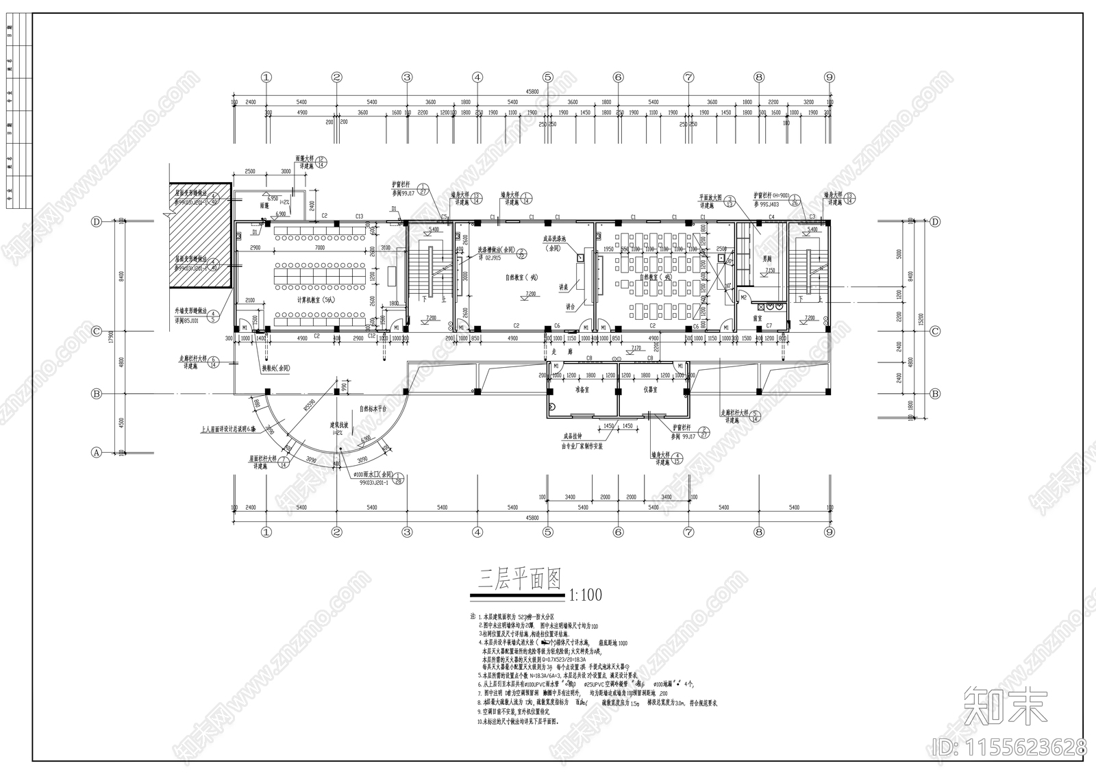
小学多功能教学楼建筑 施工图
1/
10
Previous
Next
小学多功能教学楼建筑CAD下载
ID: 1155623628
复制
上传作者
常威打来福
上传时间
2024-03-15
文件大小
0.84M
设计风格:
现代简约
CAD版本:
天正CAD6.0
包含文件:
CAD
授权
独家
立即下载
收藏
分享
举报
相关推荐
综合
教育建筑
学校建筑
幼儿园建筑