CAD频道
CAD图库
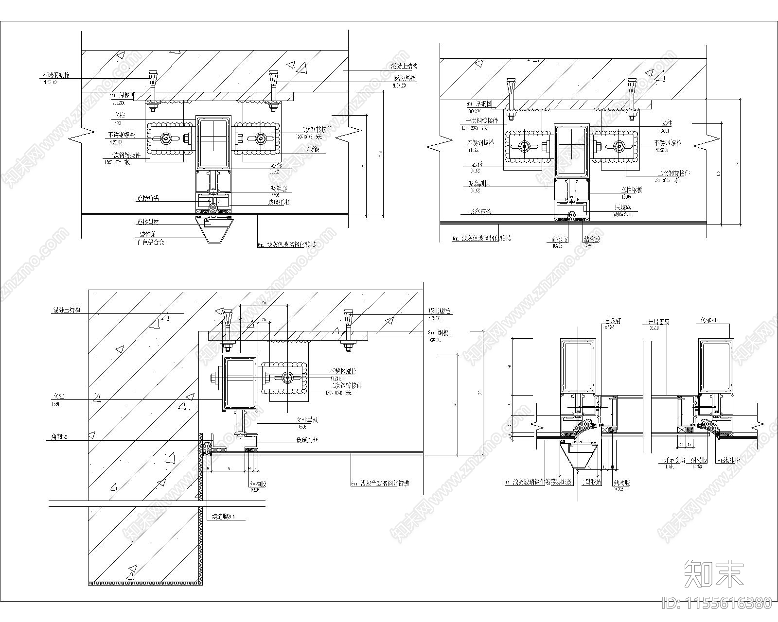
型隐框幕墙及铝塑板幕墙节点大样图 施工图 节点 结构节点图
1/
4
Previous
Next
型隐框幕墙及铝塑板幕墙节点大样图CAD下载
ID: 1155616380
复制
上传作者
笑傲容颜
上传时间
2024-03-15
文件大小
0.21M
设计风格:
--
CAD版本:
CAD2014
包含文件:
CAD
授权
独家
立即下载
收藏
分享
举报
相关推荐
综合
结构节点图
幕墙结构节点
桁架
钢结构节点
混凝土节点
转换层
其他结构设计