CAD频道
CAD图库
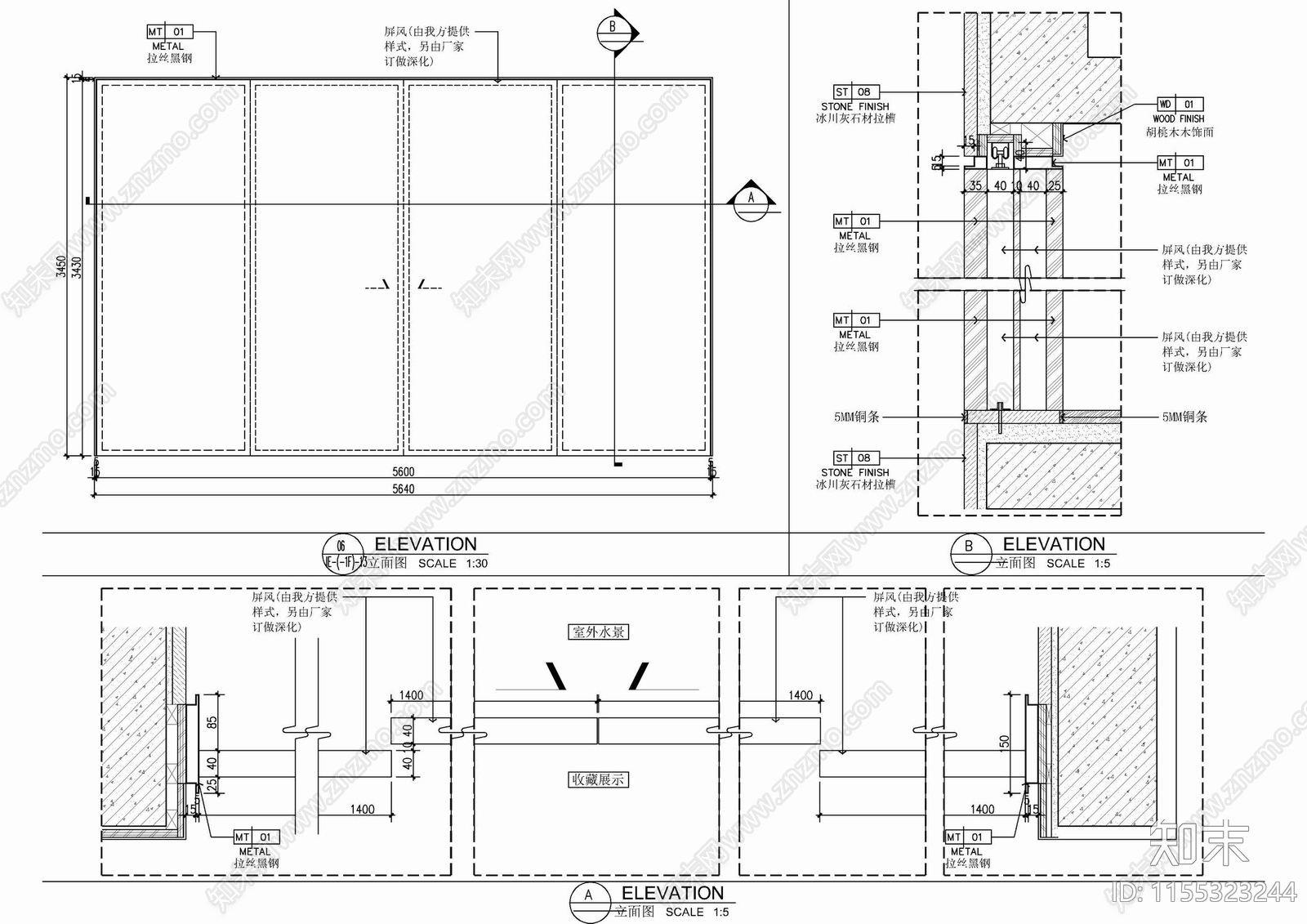
可滑动屏风隔断剖面大样详图 施工图 家具节点详图
1/
2
Previous
Next
可滑动屏风隔断剖面大样详图CAD下载
ID: 1155323244
复制
上传作者
@白鹿原
上传时间
2024-03-12
文件大小
0.59M
设计风格:
--
CAD版本:
CAD2004
包含文件:
CAD
授权
普通
立即下载
收藏
分享
举报
相关推荐
综合
硬装构件图库
屏风隔断
背景墙
地面拼花
开关插座
门
五金管件
窗
装饰线条
壁炉