CAD频道
CAD图库
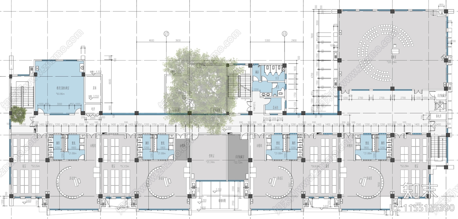
1500㎡幼儿园 早教平面布局 含PSD 施工图
1500㎡幼儿园CAD下载
ID: 1155175390
复制
上传作者
CCCL
上传时间
2024-03-11
文件大小
4.2M
设计风格:
现代简约
CAD版本:
CAD2004
包含文件:
CAD
授权
独家
立即下载
收藏
分享
举报
相关推荐
综合
平立面系统图
建筑平面图
平面图
立面图/剖面图
家装平面图