CAD频道
CAD图库
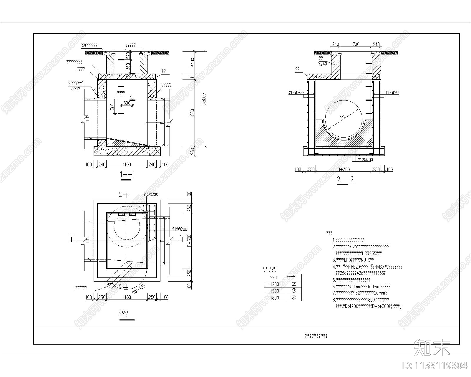
矩形雨水检查井 施工图 景观小品
1/
10
Previous
Next
矩形雨水检查井CAD下载
ID: 1155119304
复制
上传作者
撞大墙啦
上传时间
2024-03-10
文件大小
0.42M
设计风格:
--
CAD版本:
CAD2014
包含文件:
CAD
授权
独家
立即下载
收藏
分享
举报
相关推荐
综合
景观小品
综合景观小品
亭子
廊架
景墙
雨棚
围墙
挡土墙
入口
景观坐凳