CAD频道
CAD图库
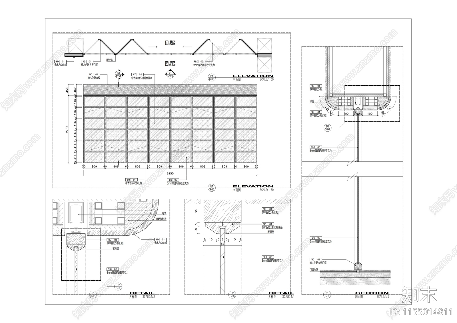
现代折叠门节点详图 施工图
1/
2
Previous
Next
现代折叠门节点详图CAD下载
ID: 1155014811
复制
上传作者
SHERRY
上传时间
2024-03-08
文件大小
1.19M
设计风格:
--
CAD版本:
CAD2004
包含文件:
CAD
授权
独家
立即下载
收藏
分享
举报
相关推荐
综合
门节点
隐形门节点
入户门
铁艺大门
月洞门
玻璃门节点
推拉门节点
综合门节点