
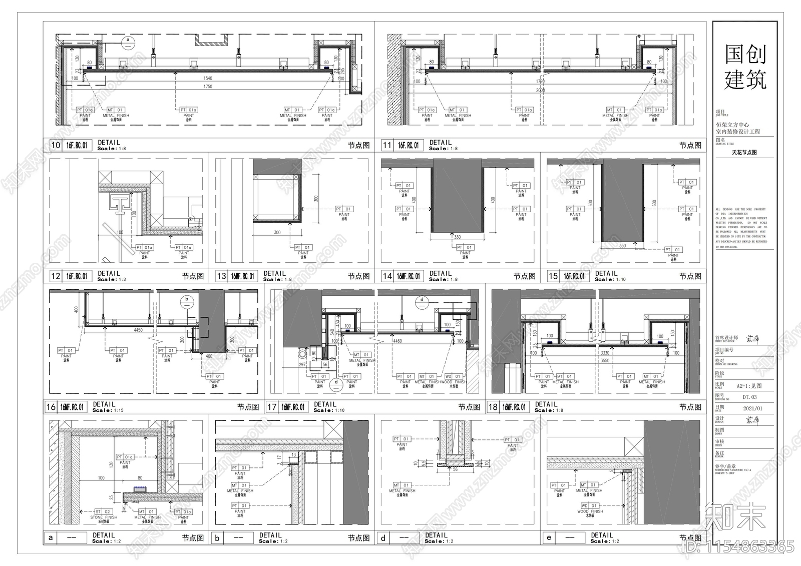
天花灯槽吊顶节点CAD下载
ID: 1154863365
复制
上传作者
861104(粉回)
861104(粉回)上传时间2024-03-06
文件大小4.32M
设计风格:--
CAD版本:CAD2004
包含文件:CAD
授权独家
立即下载
收藏
分享
举报
相关推荐
综合
吊顶节点
方通吊顶
格栅吊顶
扣板吊顶
软膜天花
铝单板吊顶
GRG吊顶节点
石膏板吊顶
矿棉板吊顶

861104(粉回)上传时间2024-03-06
文件大小4.32M
设计风格:--
CAD版本:CAD2004
包含文件:CAD
授权独家