1/6


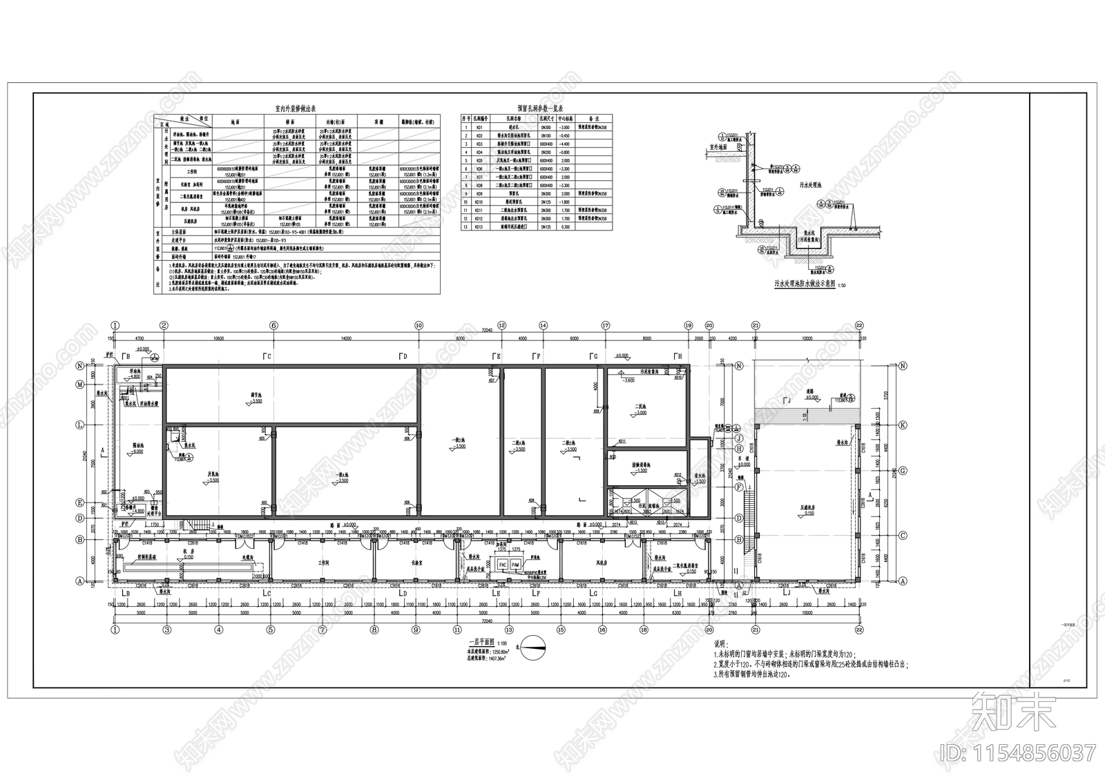
屠宰厂污水处理间建筑CAD下载
ID: 1154856037
复制
上传作者
QQQQ
QQQQ上传时间2024-03-06
文件大小0.43M
设计风格:--
CAD版本:天正CAD6.0
包含文件:CAD
授权独家
立即下载
收藏
分享
举报
相关推荐
综合
机电工程
水处理
给排水图
暖通空调
电气图
电气工程节点
消防设施
机械设备
其他机电图纸
建筑给排水


QQQQ上传时间2024-03-06
文件大小0.43M
设计风格:--
CAD版本:天正CAD6.0
包含文件:CAD
授权独家