1/9


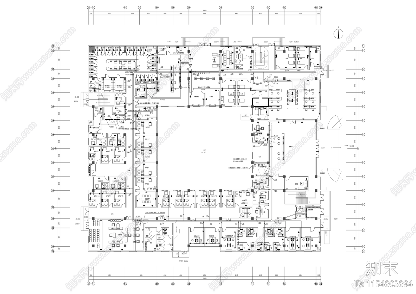
业务及辅助用房项目建筑电气CAD下载
ID: 1154803894
复制
上传作者
巴迪咔哇
巴迪咔哇上传时间2024-03-05
文件大小12.06M
设计风格:--
CAD版本:CAD2009
包含文件:CAD
授权独家
立即下载
收藏
分享
举报
相关推荐
综合
机电工程
电气图
给排水图
水处理
暖通空调
电气工程节点
消防设施
机械设备
其他机电图纸
建筑给排水


巴迪咔哇上传时间2024-03-05
文件大小12.06M
设计风格:--
CAD版本:CAD2009
包含文件:CAD
授权独家