1/2


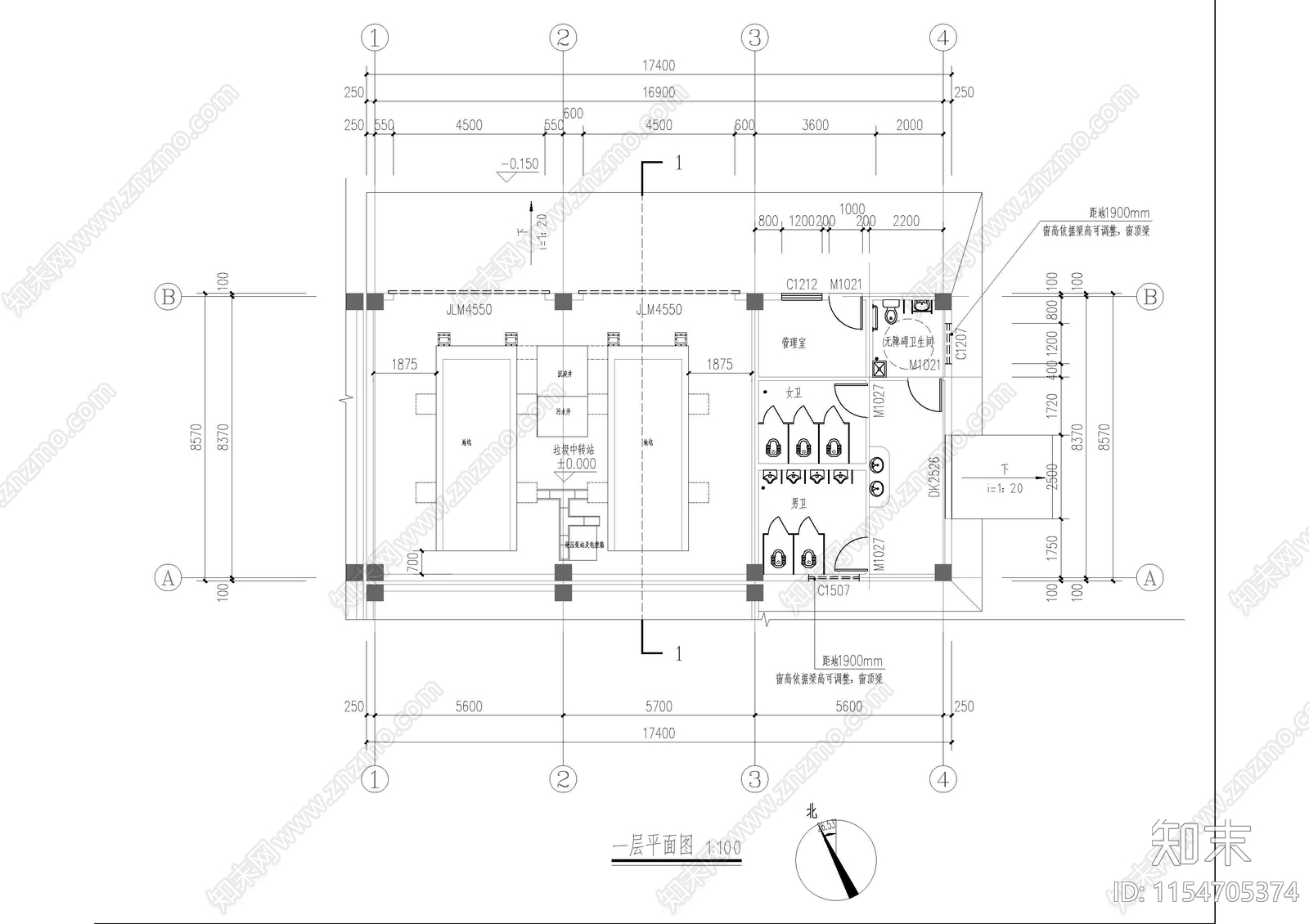
现代垃圾转运站CAD下载
ID: 1154705374
复制
上传作者
清晨的晚风
清晨的晚风上传时间2024-03-04
文件大小0.12M
设计风格:现代简约
CAD版本:CAD2014
包含文件:CAD
授权独家
立即下载
收藏
分享
举报
相关推荐
综合
公共建筑
公厕
会议中心建筑
行政机构建筑
其他公共建筑
医院建筑
门卫室建筑
停车楼
消防站
集装箱


清晨的晚风上传时间2024-03-04
文件大小0.12M
设计风格:现代简约
CAD版本:CAD2014
包含文件:CAD
授权独家