CAD频道
CAD图库
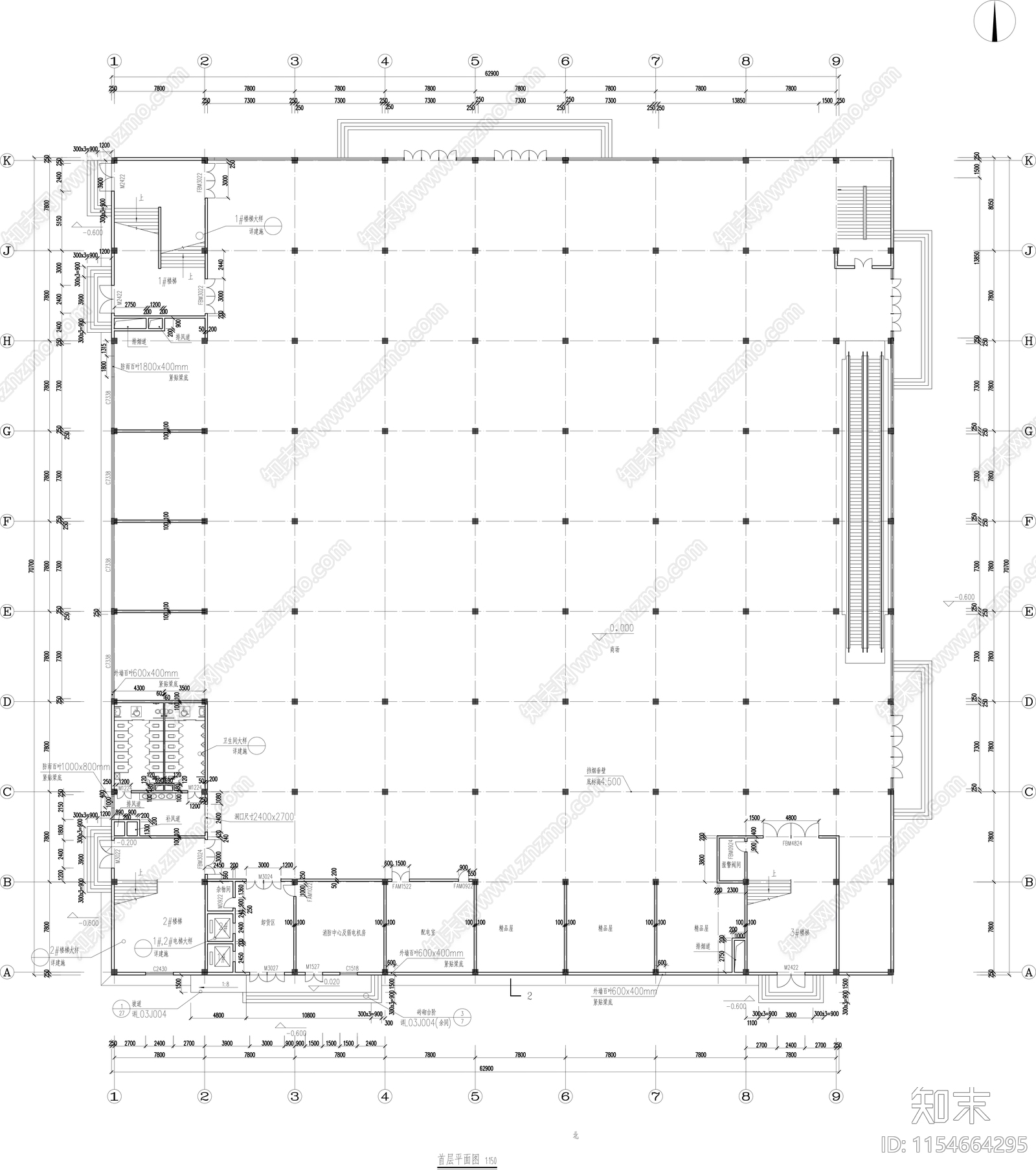
三层农贸市建筑 施工图
1/
4
Previous
Next
三层农贸市建筑CAD下载
ID: 1154664295
复制
上传作者
Faded
上传时间
2024-03-03
文件大小
0.41M
设计风格:
现代简约
CAD版本:
天正CAD5.0
包含文件:
CAD
授权
独家
立即下载
收藏
分享
举报
相关推荐
综合
商业空间
农贸市场
售楼处
商场
其他商业空间
超市
服装店
书店
美甲店
珠宝店