1/3


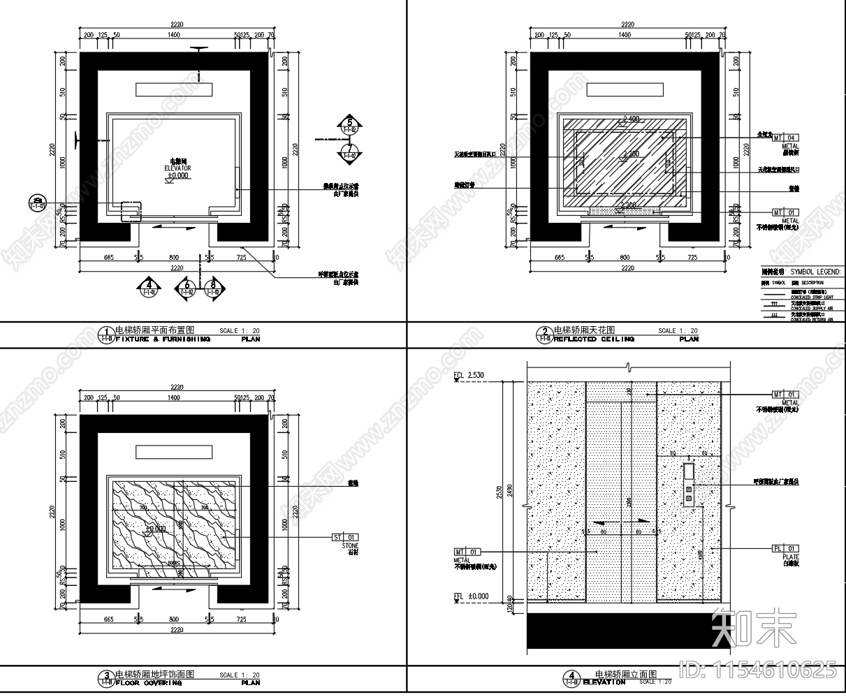
杭州某样板间电梯轿厢节点CAD下载
ID: 1154610625
复制
上传作者
*-84698112
*-84698112上传时间2024-03-02
文件大小1.65M
设计风格:--
CAD版本:CAD2017
包含文件:CAD
授权普通
立即下载
收藏
分享
举报
相关推荐
综合
公共空间
电梯厅
其他公共空间
公共卫生间
宿舍
门头
服务中心
活动中心
会展
母婴室


*-84698112上传时间2024-03-02
文件大小1.65M
设计风格:--
CAD版本:CAD2017
包含文件:CAD
授权普通