CAD频道
CAD图库
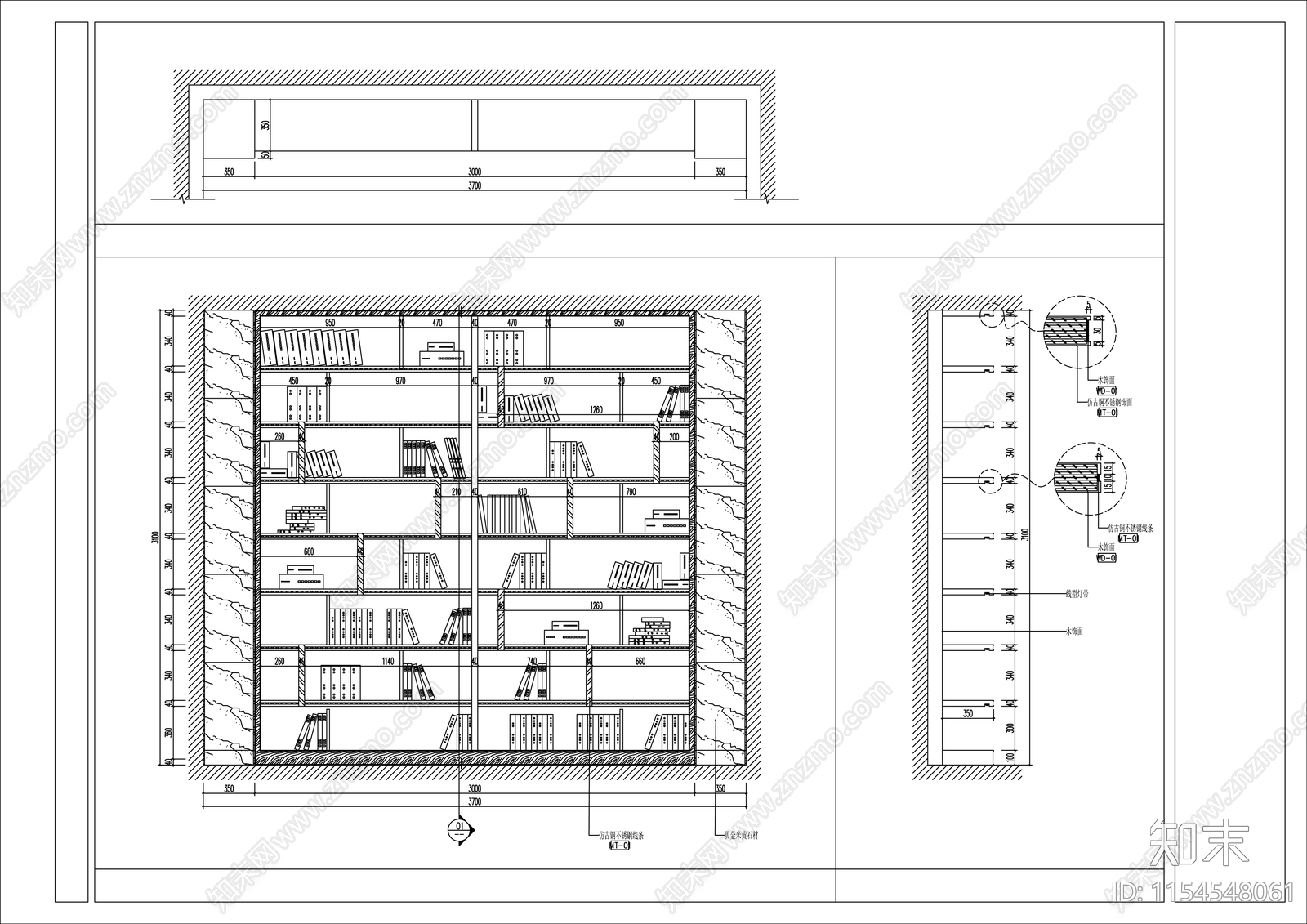
展柜 书柜大样图节点图 施工图 柜类 家具节点详图
展柜CAD下载
ID: 1154548061
复制
上传作者
Summer
上传时间
2024-03-01
文件大小
10.4M
设计风格:
--
CAD版本:
CAD2013
包含文件:
CAD
授权
独家
立即下载
收藏
分享
举报
相关推荐
综合
家具节点详图
柜体节点
吧台节点
壁炉节点
卡座节点
前台节点
综合家具节点