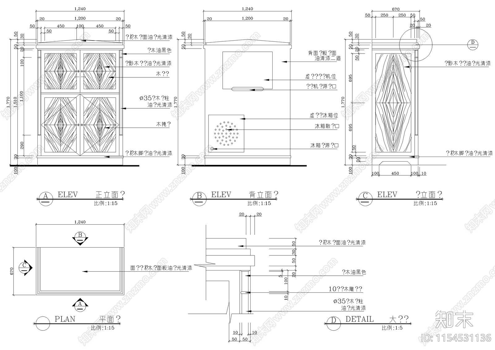
客房电视几柜施工图下载【ID:1154531136】

客房电视几柜CAD下载

ID: 1154531136
复制
上传作者
天选搬砖天选搬砖

上传时间2024-03-01

文件大小0.09M

设计风格:--

CAD版本:CAD2014

包含文件:CAD

授权独家

立即下载
收藏
分享
举报
相关推荐
综合
家具节点详图
柜体节点
吧台节点
壁炉节点
卡座节点
前台节点
综合家具节点