CAD频道
CAD图库
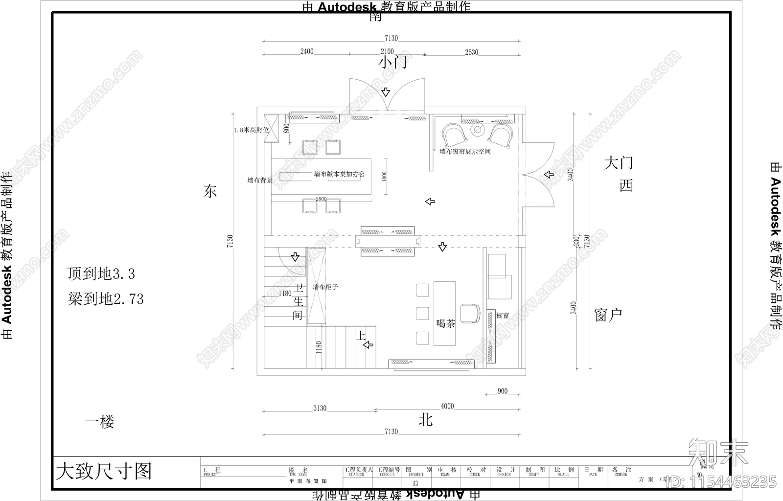
窗帘布艺墙布墙纸展厅 施工图
1/
3
Previous
Next
窗帘布艺墙布墙纸展厅CAD下载
ID: 1154463235
复制
上传作者
绘
上传时间
2024-02-29
文件大小
1.85M
设计风格:
现代简约
CAD版本:
CAD2004
包含文件:
CAD
授权
普通
立即下载
收藏
分享
举报
相关推荐
综合
软装摆件图库
窗帘
地毯
综合软装摆件图库
珠宝首饰
佛龛佛像
摆件
书
玩具
镜子