CAD频道
CAD图库
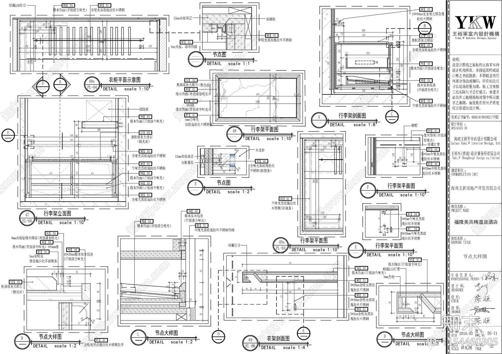
行李架节点大样图 施工图 柜类 家具节点详图
1/
5
Previous
Next
行李架节点大样图CAD下载
ID: 1154460305
复制
上传作者
Inspiration
上传时间
2024-02-29
文件大小
1.58M
设计风格:
--
CAD版本:
--
包含文件:
CAD
授权
独家
立即下载
收藏
分享
举报
相关推荐
综合
家具节点详图
柜体节点
吧台节点
壁炉节点
卡座节点
前台节点
综合家具节点