CAD频道
CAD图库
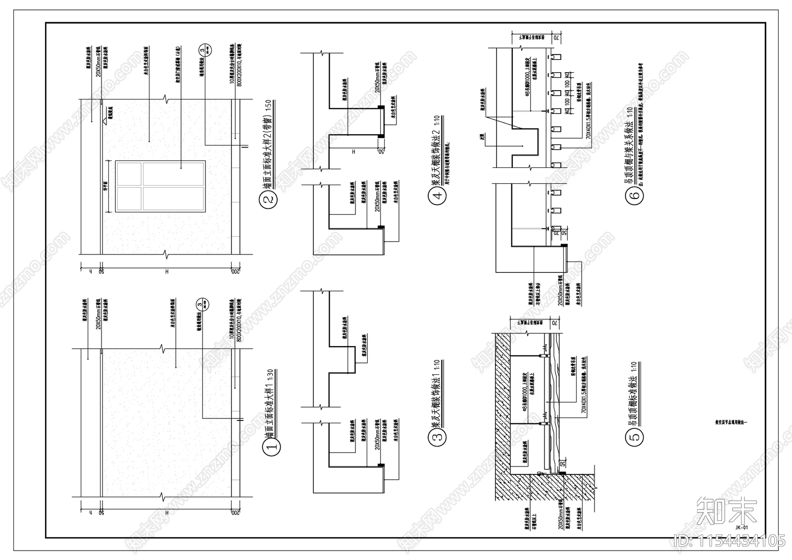
架空层节点通用做法 小区架空层做法 施工图 通用节点 建筑平面图
1/
3
Previous
Next
架空层节点通用做法CAD下载
ID: 1154434105
复制
上传作者
随心而作
上传时间
2024-02-28
文件大小
0.35M
设计风格:
--
CAD版本:
CAD2004
包含文件:
CAD
授权
独家
立即下载
收藏
分享
举报
相关推荐
综合
平立面系统图
建筑平面图
平面图
立面图/剖面图
家装平面图