CAD频道
CAD图库
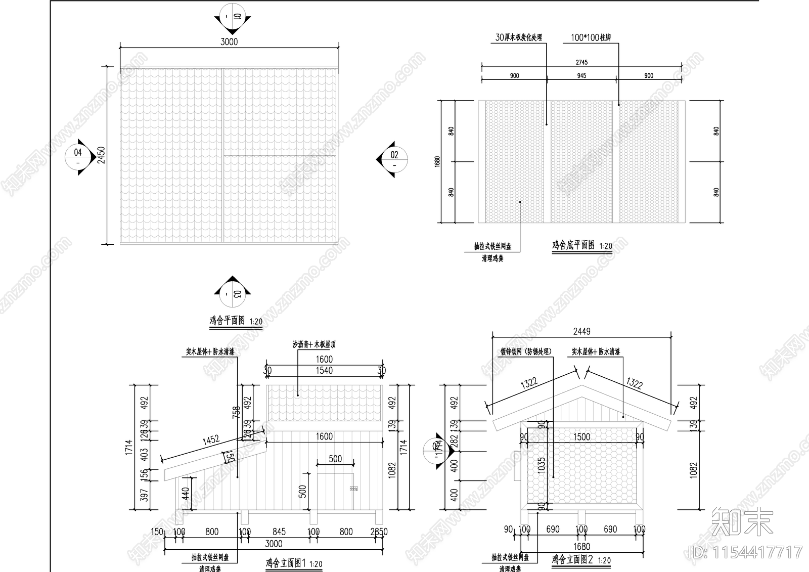
鸡舍效果图 施工图 乡村振兴 乡村景观
1/
2
Previous
Next
鸡舍效果图CAD下载
ID: 1154417717
复制
上传作者
95414896
上传时间
2024-02-28
文件大小
6.76M
设计风格:
现代简约
CAD版本:
天正CAD4.0
包含文件:
CAD
授权
独家
立即下载
收藏
分享
举报
相关推荐
综合
乡村景观
乡村振兴
乡村改造
其他乡村景观
农场