CAD频道
CAD图库
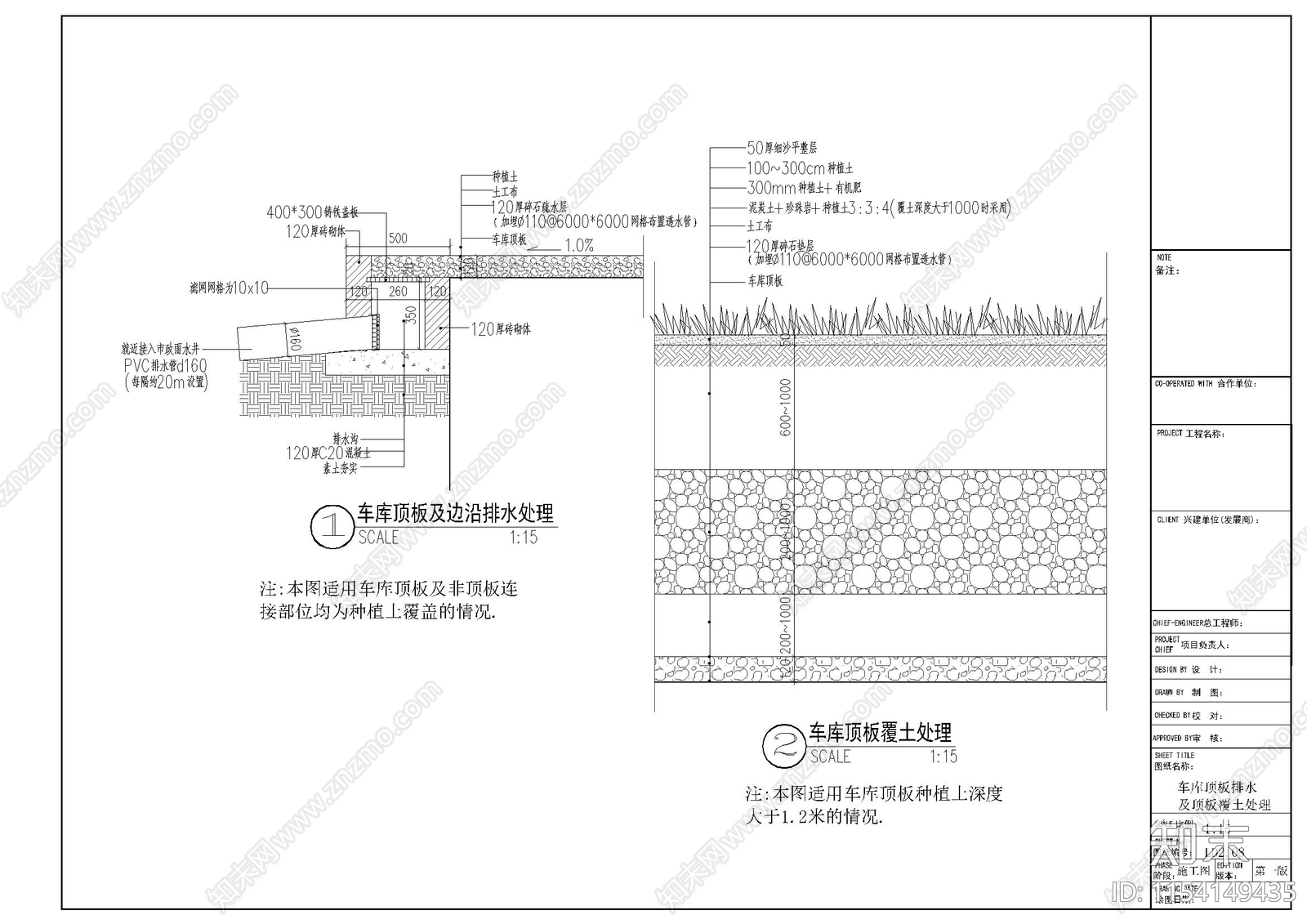
车库顶板排水 顶板覆土详图 施工图 通用节点
1/
2
Previous
Next
车库顶板排水CAD下载
ID: 1154149435
复制
上传作者
艺创空间
上传时间
2024-02-23
文件大小
0.04M
设计风格:
--
CAD版本:
天正CAD6.0
包含文件:
CAD
授权
独家
立即下载
收藏
分享
举报
相关推荐
综合
室内工艺节点
其他室内工艺节点