CAD频道
CAD图库
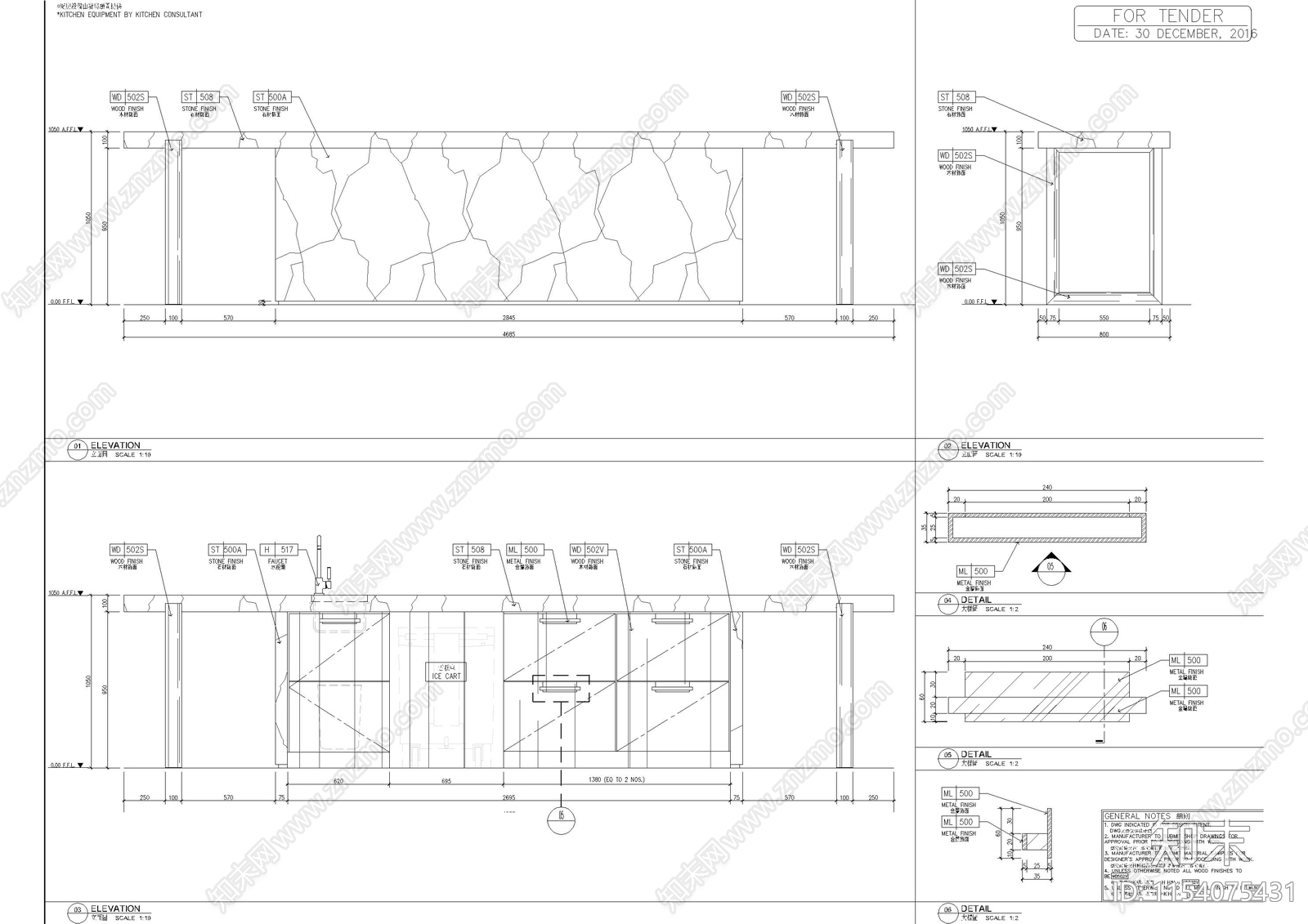
厨房餐台柜节点图 施工图 岛台餐台
1/
3
Previous
Next
厨房餐台柜节点图CAD下载
ID: 1154075431
复制
上传作者
xin图
上传时间
2024-02-22
文件大小
1.99M
设计风格:
--
CAD版本:
CAD2004
包含文件:
CAD
授权
普通
立即下载
收藏
分享
举报
相关推荐
综合
家具图库
桌子
沙发
桌椅
床
吧台
柜子
榻榻米
椅子
遮阳伞