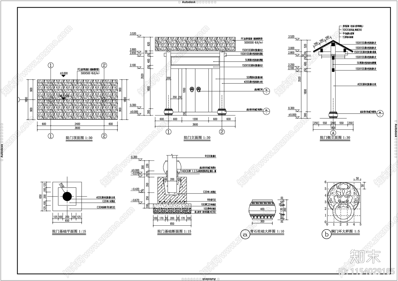
院坝门头详图施工图下载【ID:1154029185】

院坝门头详图CAD下载

ID: 1154029185
复制
上传作者
设计巨犟设计巨犟

上传时间2024-02-21

文件大小0.64M

设计风格:--

CAD版本:天正CAD4.0

包含文件:CAD

授权独家

立即下载
收藏
分享
举报
相关推荐
综合
古建
其他古建筑
祠堂
寺庙
徽派建筑
仿古建筑