CAD频道
CAD图库
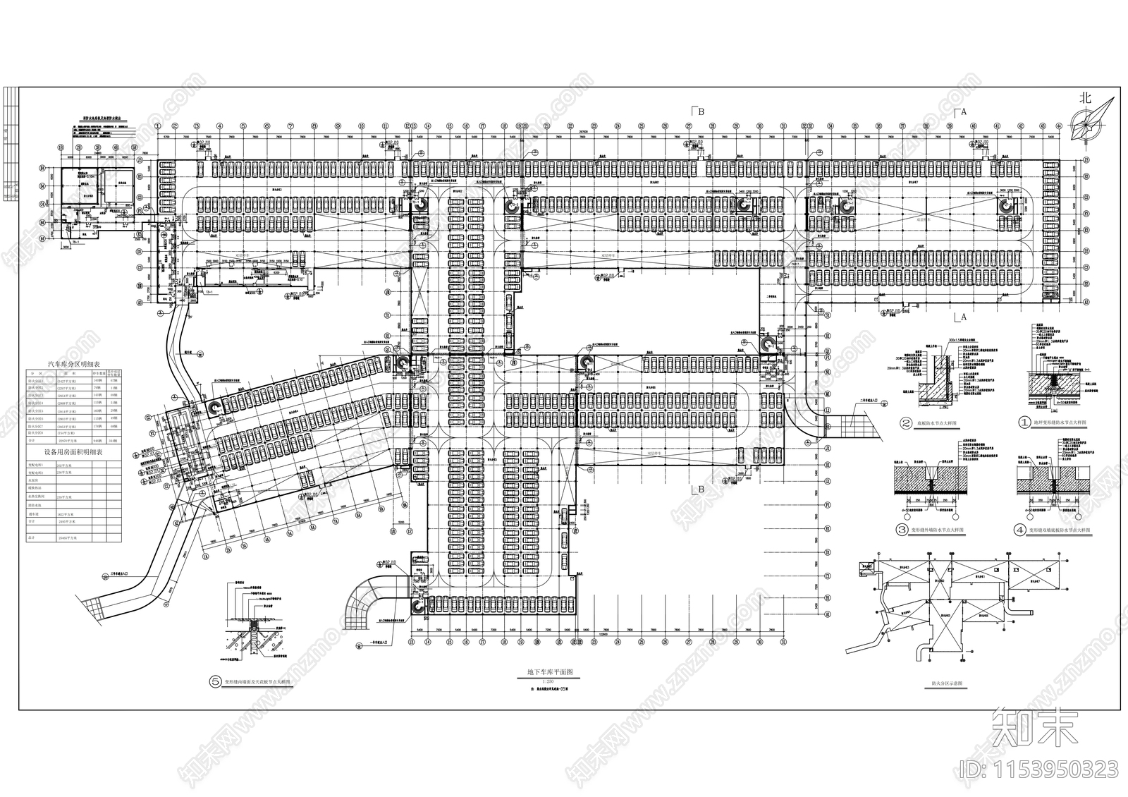
地下车库 车道详面图 施工图
1/
8
Previous
Next
地下车库CAD下载
ID: 1153950323
复制
上传作者
常威打来福
上传时间
2024-02-20
文件大小
1.45M
设计风格:
现代简约
CAD版本:
天正CAD6.0
包含文件:
CAD
授权
独家
立即下载
收藏
分享
举报
相关推荐
综合
平立面系统图
建筑平面图
平面图
立面图/剖面图
家装平面图