CAD频道
CAD图库
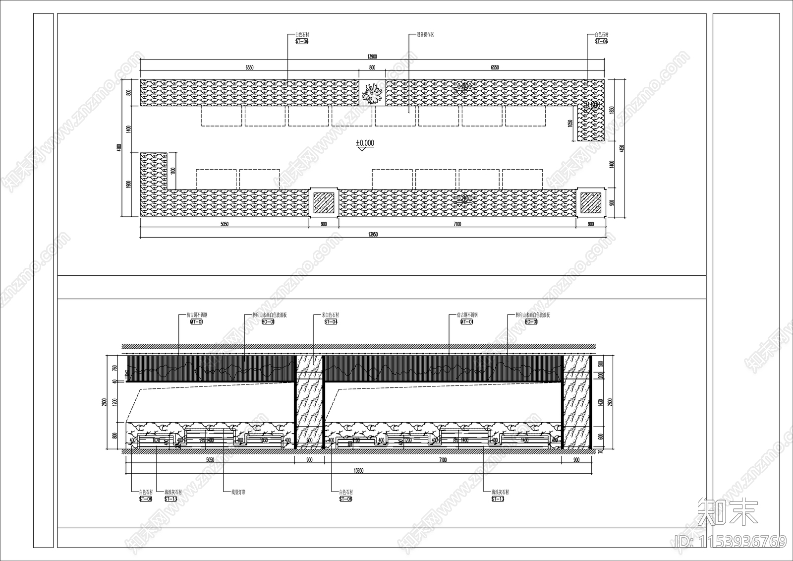
餐台大样节点图 施工图 岛台餐台
1/
2
Previous
Next
餐台大样节点图CAD下载
ID: 1153936769
复制
上传作者
Summer
上传时间
2024-02-20
文件大小
2.5M
设计风格:
--
CAD版本:
CAD2013
包含文件:
CAD
授权
独家
立即下载
收藏
分享
举报
相关推荐
综合
家具图库
吧台
沙发
桌椅
床
柜子
榻榻米
椅子
桌子
遮阳伞