CAD频道
CAD图库
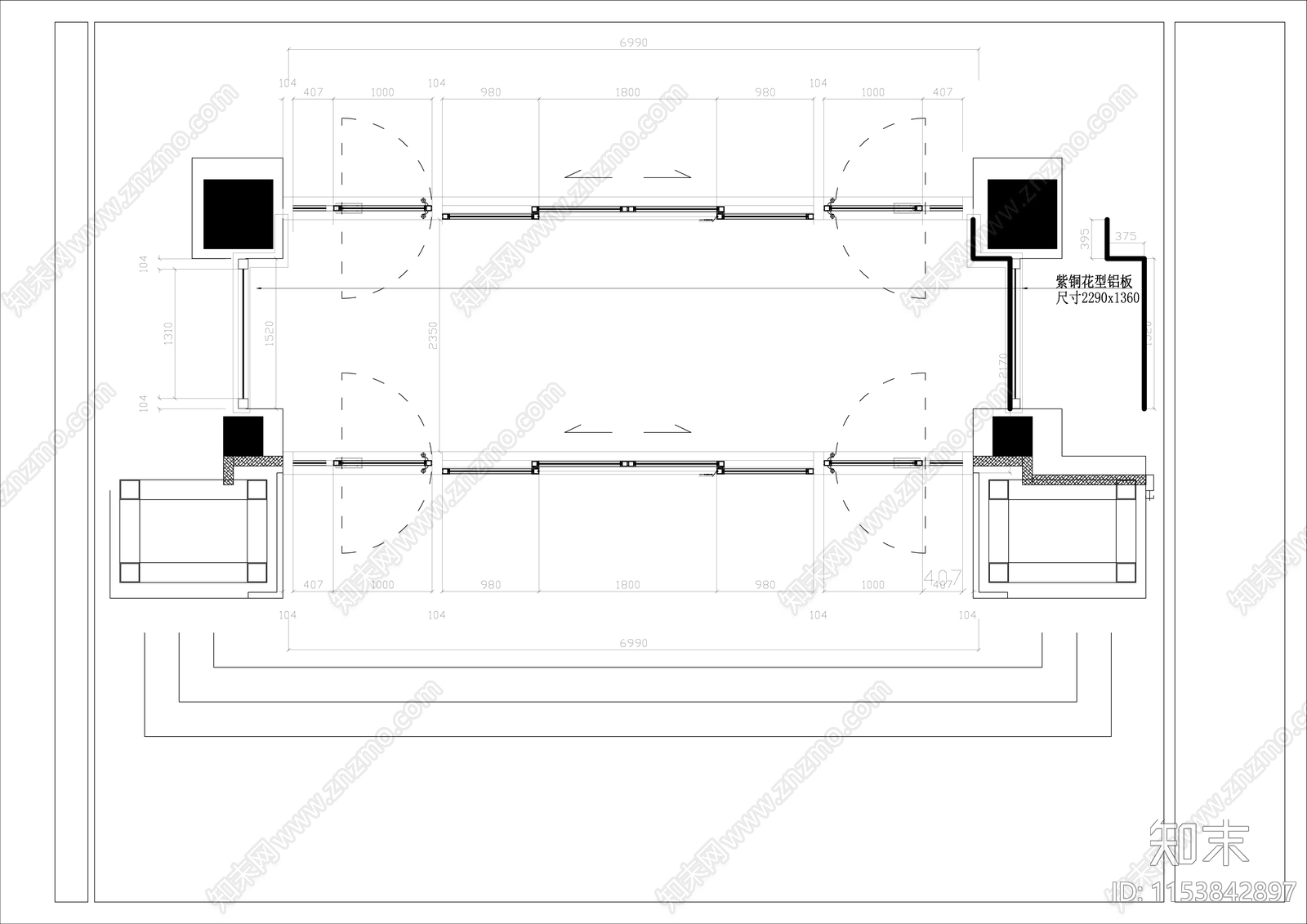
电动推拉门大样节点 施工图 门节点
1/
2
Previous
Next
电动推拉门大样节点CAD下载
ID: 1153842897
复制
上传作者
Summer
上传时间
2024-02-18
文件大小
4.33M
设计风格:
--
CAD版本:
CAD2007
包含文件:
CAD
授权
独家
立即下载
收藏
分享
举报
相关推荐
综合
门节点
推拉门节点
入户门
铁艺大门
月洞门
玻璃门节点
隐形门节点
综合门节点