CAD频道
CAD图库
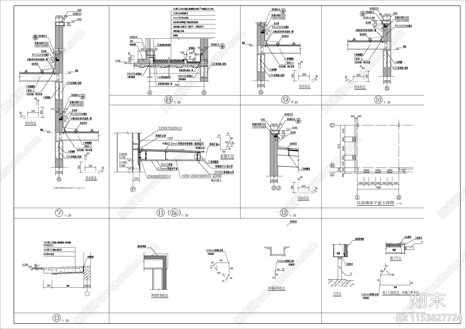
彩钢板及钢架结构节点 施工图 节点
1/
3
Previous
Next
彩钢板及钢架结构节点CAD下载
ID: 1153827724
复制
上传作者
TXDC
上传时间
2024-02-17
文件大小
0.64M
设计风格:
--
CAD版本:
--
包含文件:
CAD
授权
独家
立即下载
收藏
分享
举报
相关推荐
综合
建筑工程节点
屋顶
柱子节点
吊装节点
斗拱节点
楼板节点
女儿墙节点
塔吊节点
天窗节点
屋檐节点