CAD频道
CAD图库
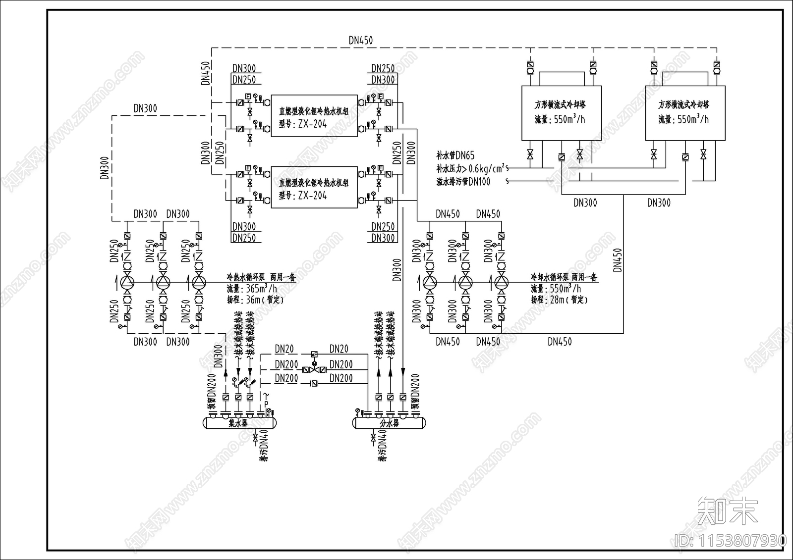
空调机房暖通 施工图 建筑暖通
1/
3
Previous
Next
空调机房暖通CAD下载
ID: 1153807930
复制
上传作者
TXDC
上传时间
2024-02-16
文件大小
0.13M
设计风格:
--
CAD版本:
--
包含文件:
CAD
授权
独家
立即下载
收藏
分享
举报
相关推荐
综合
机电工程
暖通空调
给排水图
水处理
电气图
电气工程节点
消防设施
机械设备
其他机电图纸
建筑给排水