CAD频道
CAD图库
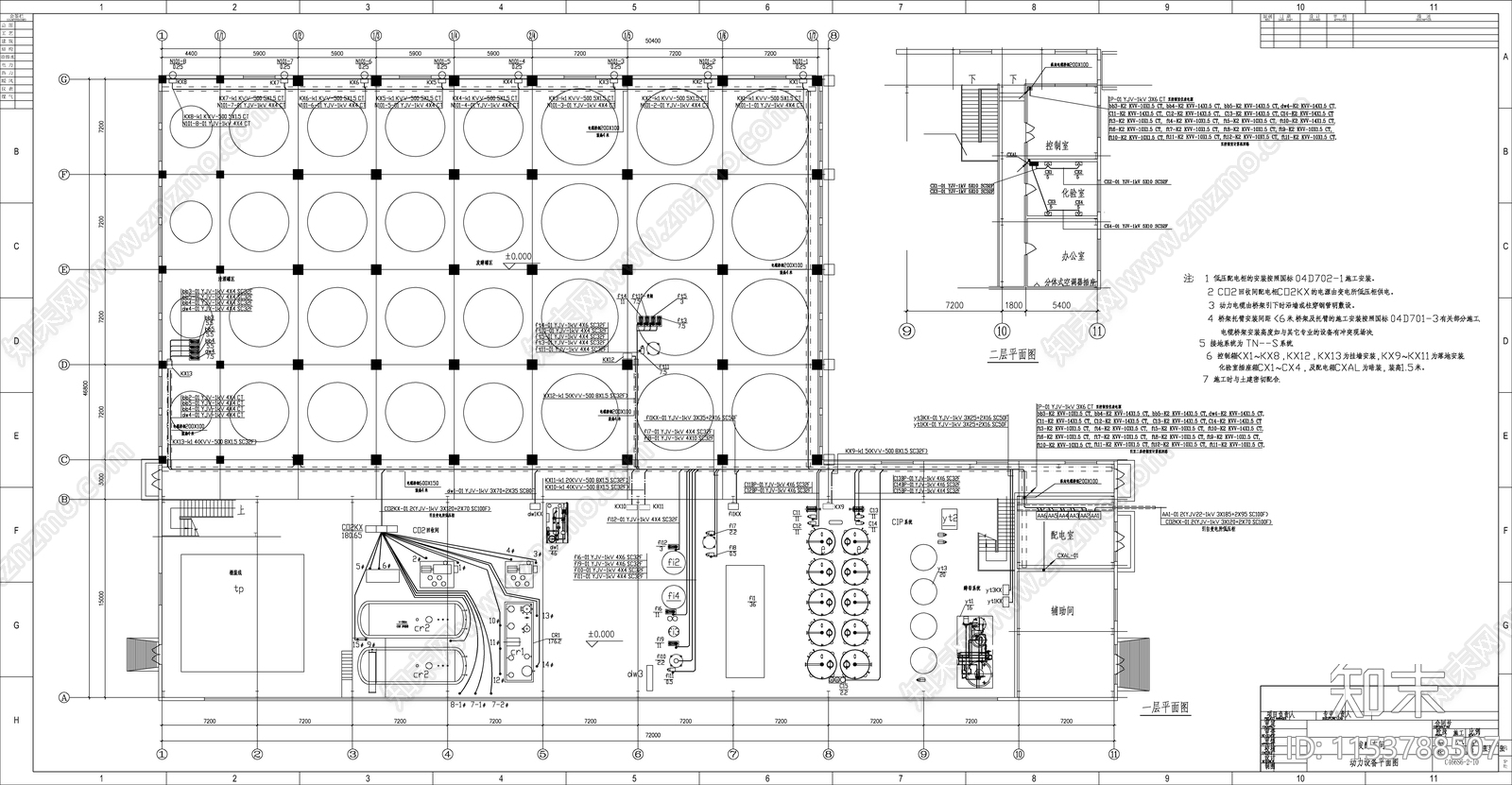
啤酒厂发酵车间电气 施工图 建筑电气 电气图
1/
7
Previous
Next
啤酒厂发酵车间电气CAD下载
ID: 1153788507
复制
上传作者
TXDC
上传时间
2024-02-15
文件大小
0.79M
设计风格:
--
CAD版本:
--
包含文件:
CAD
授权
独家
立即下载
收藏
分享
举报
相关推荐
综合
公共空间
车间
其他公共空间
公共卫生间
宿舍
门头
服务中心
活动中心
会展
母婴室