1/4


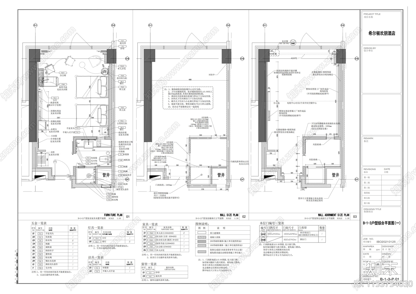
落地窗双标间套房室内CAD下载
ID: 1153754030
复制
上传作者
CCCL
CCCL上传时间2024-02-08
文件大小4.03M
设计风格:现代简约
CAD版本:CAD2004
包含文件:CAD
授权独家
立即下载
收藏
分享
举报
相关推荐
综合
酒店
酒店套房
酒店餐厅
酒店大堂
酒店公区
酒店客房
酒店卫生间
酒店宴会厅
其他酒店


CCCL上传时间2024-02-08
文件大小4.03M
设计风格:现代简约
CAD版本:CAD2004
包含文件:CAD
授权独家