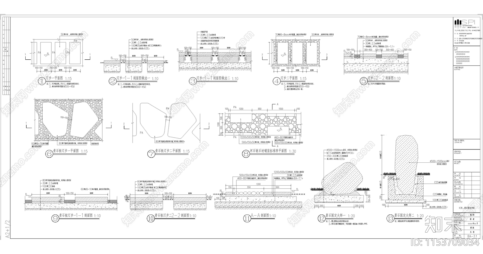
汀步景石固定节点施工图下载【ID:1153709034】

汀步景石固定节点CAD下载

ID: 1153709034
复制
上传作者
WVAMWVAM

上传时间2024-02-06

文件大小0.22M

设计风格:--

CAD版本:天正CAD8.0

包含文件:CAD

授权独家

立即下载
收藏
分享
举报
相关推荐
综合
室内工艺节点
其他室内工艺节点