
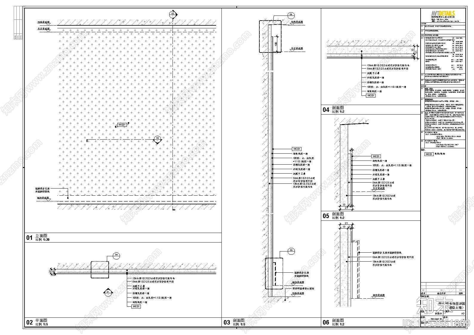
壁纸墙布饰面详图CAD下载
ID: 1153661809
复制
上传作者
AVT-DETAILS@深化/施工圖
AVT-DETAILS@深化/施工圖上传时间2024-02-04
文件大小0.88M
设计风格:--
CAD版本:CAD2004
包含文件:CAD
授权独家
立即下载
收藏
分享
举报
相关推荐
综合
墙面节点
背景墙节点
轻钢龙骨隔墙
壁龛节点
隔音墙节点

AVT-DETAILS@深化/施工圖上传时间2024-02-04
文件大小0.88M
设计风格:--
CAD版本:CAD2004
包含文件:CAD
授权独家