CAD频道
CAD图库
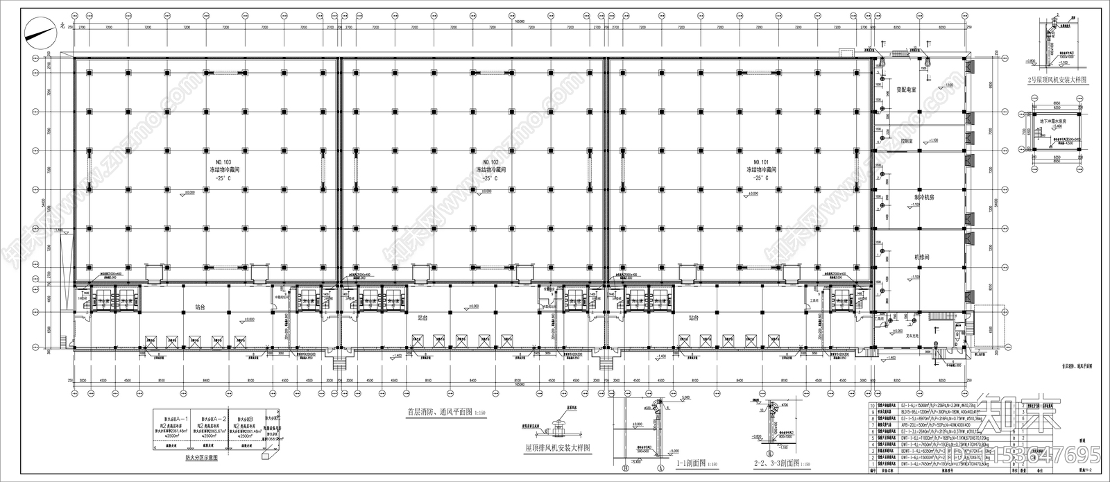
电商冷库暖通 施工图 建筑暖通
1/
7
Previous
Next
电商冷库暖通CAD下载
ID: 1153647695
复制
上传作者
TXDC
上传时间
2024-02-04
文件大小
0.84M
设计风格:
--
CAD版本:
--
包含文件:
CAD
授权
独家
立即下载
收藏
分享
举报
相关推荐
综合
公共空间
仓库
其他公共空间
公共卫生间
宿舍
门头
服务中心
活动中心
会展
母婴室