CAD频道
CAD图库
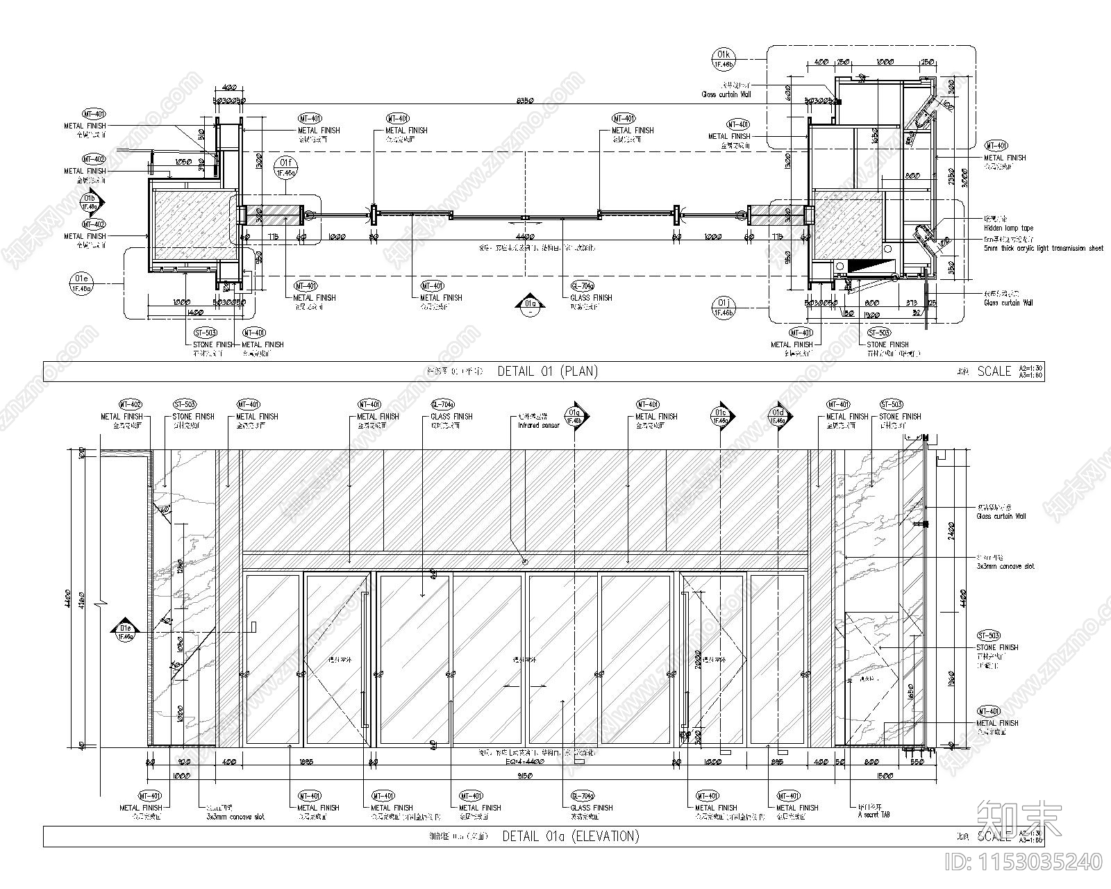
酒店大堂入口墙身节点 施工图 墙面通用节点
1/
3
Previous
Next
酒店大堂入口墙身节点CAD下载
ID: 1153035240
复制
上传作者
在逃香菜
上传时间
2024-01-24
文件大小
0.6M
设计风格:
--
CAD版本:
CAD2004
包含文件:
CAD
授权
独家
立即下载
收藏
分享
举报
相关推荐
综合
墙面节点
背景墙节点
轻钢龙骨隔墙
壁龛节点
隔音墙节点