CAD频道
CAD图库
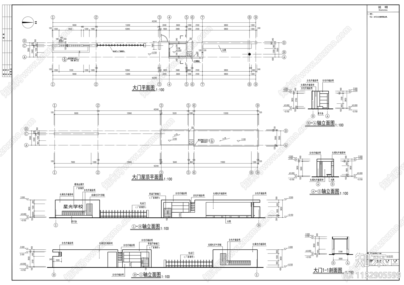
星光学校大门建筑图 施工图
1/
2
Previous
Next
星光学校大门建筑图CAD下载
ID: 1152905599
复制
上传作者
常威打来福
上传时间
2024-01-22
文件大小
1.3M
设计风格:
现代简约
CAD版本:
天正CAD6.0
包含文件:
CAD
授权
独家
立即下载
收藏
分享
举报
相关推荐
综合
景观小品
入口
亭子
廊架
景墙
综合景观小品
雨棚
围墙
挡土墙
景观坐凳