1/10


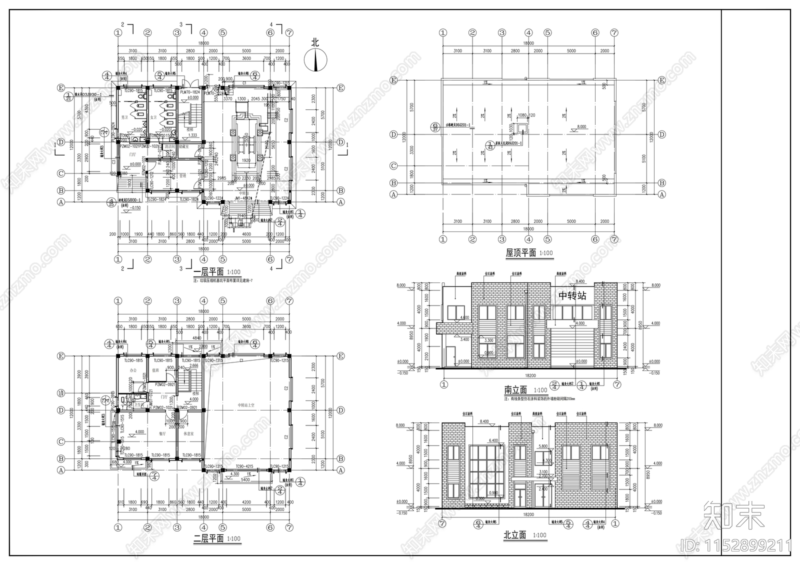
生活垃圾中转站建筑施工套图CAD下载
ID: 1152899211
复制
上传作者
常威打来福
常威打来福上传时间2024-01-22
文件大小2.51M
设计风格:现代简约
CAD版本:天正CAD6.0
包含文件:CAD
授权独家
立即下载
收藏
分享
举报
相关推荐
综合
办公工业建筑
产业园建筑
办公楼建筑
厂房
其他办公建筑
政府办公楼
企业总部大厦
科研办公楼
金融办公建筑
研发中心


常威打来福上传时间2024-01-22
文件大小2.51M
设计风格:现代简约
CAD版本:天正CAD6.0
包含文件:CAD
授权独家