1/8


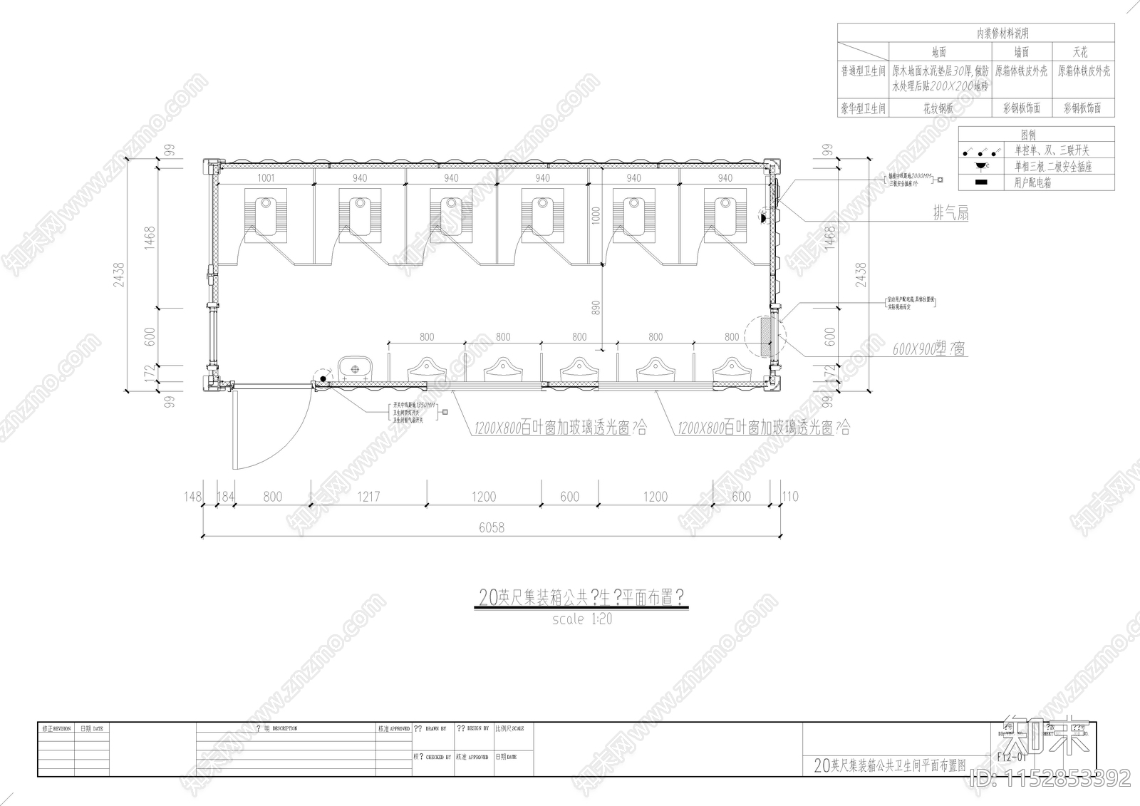
现代集装箱公共卫生间CAD下载
ID: 1152853392
复制
上传作者
QQQQ
QQQQ上传时间2024-01-22
文件大小4.68M
设计风格:现代简约
CAD版本:天正CAD6.0
包含文件:CAD
授权独家
立即下载
收藏
分享
举报
相关推荐
综合
公共建筑
集装箱
会议中心建筑
公厕
行政机构建筑
其他公共建筑
医院建筑
门卫室建筑
停车楼
消防站


QQQQ上传时间2024-01-22
文件大小4.68M
设计风格:现代简约
CAD版本:天正CAD6.0
包含文件:CAD
授权独家